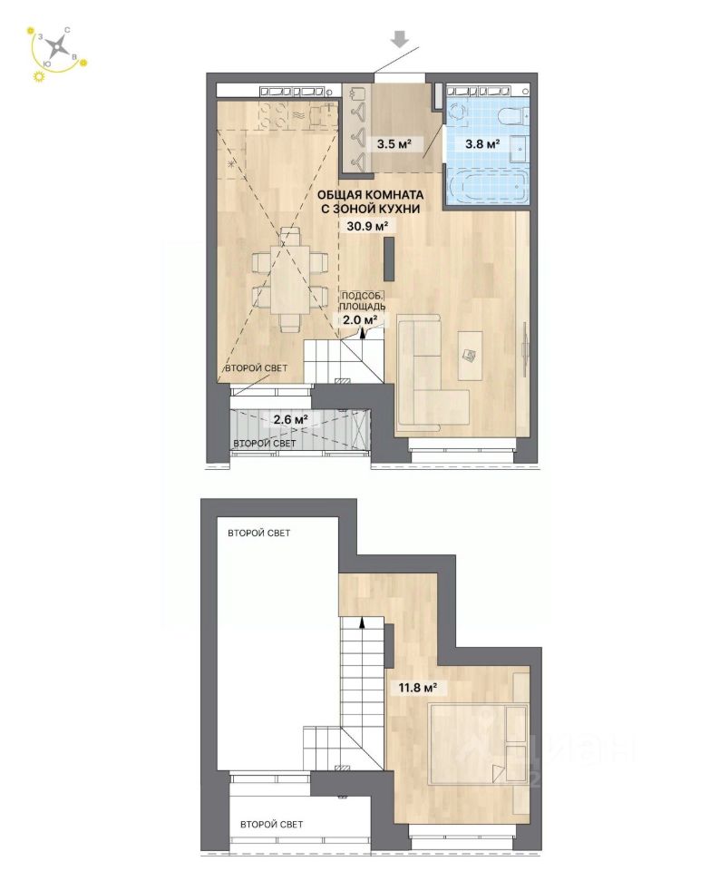
Квартира 63 в подъезде 1.
Готовые квартиры в одном из самых зелёных и благоустроенных районов Екатеринбурга — в Краснолесье! Огромный Юго-Западный лесопарк под окнами. Детские садики в соседних дворах. Проектируемые пешеходная улица и школа по соседству. Дизайнерское благоустройство парадных холлов и придомовой территории. Большие дворы без машин. Квартиры с фирменной чистовой отделкой — заезжай и живи!
Очередь состоит из двух домов: четырёхэтажного (19/4) и девятиэтажного (21/4).

















