Если цена в объявлении изменится, мы сразу сообщим вам об этом на электронную почту.
Нажимая «Подписаться», вы соглашаетесь с правилами.
продам отдельностоящее здание, Ленина, 11410 500 000 ₽
2 июня 2025
Дата публикации объявления
Обн. 29 мар
Дата обновления объявления
6
Количество просмотров (+ просмотры за сегодня)
12 209 ₽/м²
Параметры
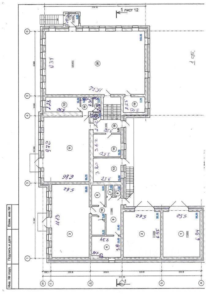
Общая площадь860 м2
Этаж1
Отдельный входесть
Продается КОМПЛЕКС НЕДВИЖИМОГО ИМУЩЕСТВА, состоящий из ЗЕМЕЛЬНОГО УЧАСТКА и ОБЪЕКТА НЕЗАВЕРШЕННОГО СТРОИТЕЛЬСТВА.
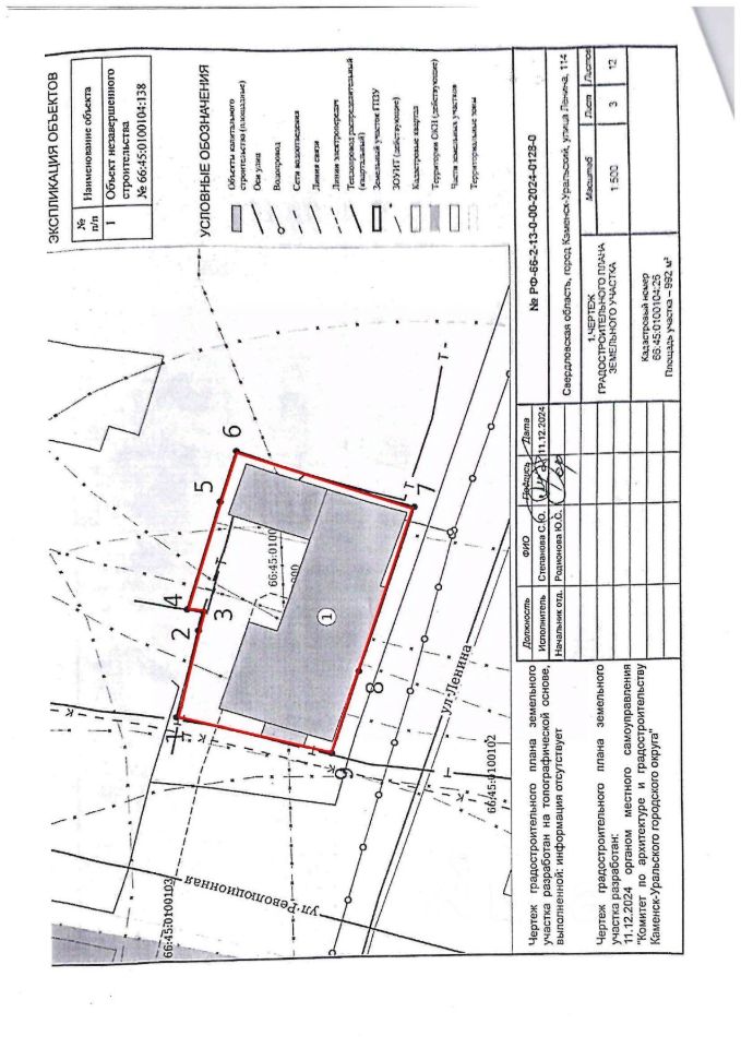
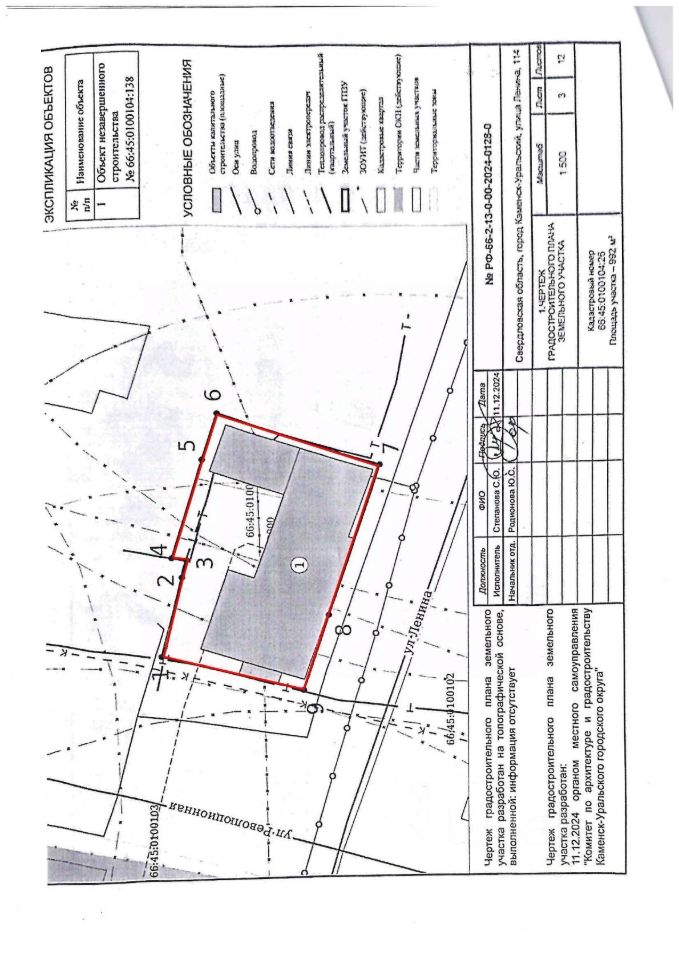
Адрес: г. Каменск- Уральский, ул. Ленина, д. 114
- ЗЕМЕЛЬНЫЙ УЧАСТОК имеет площадь 992 кв.м. - ОБЪЕКТ НЕЗАВЕРШЕННОГО СТРОИТЕЛЬСТВА- площадь 860.2 кв.м., степень готовности 61%. Вид права на Земельный участок и Объект незавершенный строительством - собственность, оба объекта недвижимости зарегистрированы в Росреестре. Кадастровый номер земельного участка: 66:45:0100104:26. Категория: земли населенных пунктов, виды разрешенного использования: объекты бытового обслуживания населению. Участок застроен на 2/3 площади. Кадастровый номер Объекта незавершенного строительством: 66:45:0100104:138, проектируемое назначение- Нежилое.
Продается КОМПЛЕКС НЕДВИЖИМОГО ИМУЩЕСТВА, состоящий из ЗЕМЕЛЬНОГО УЧАСТКА и ОБЪЕКТА НЕЗАВЕРШЕННОГО СТРОИТЕЛЬСТВА.
Адрес: г. Каменск- Уральский, ул. Ленина, д. 114
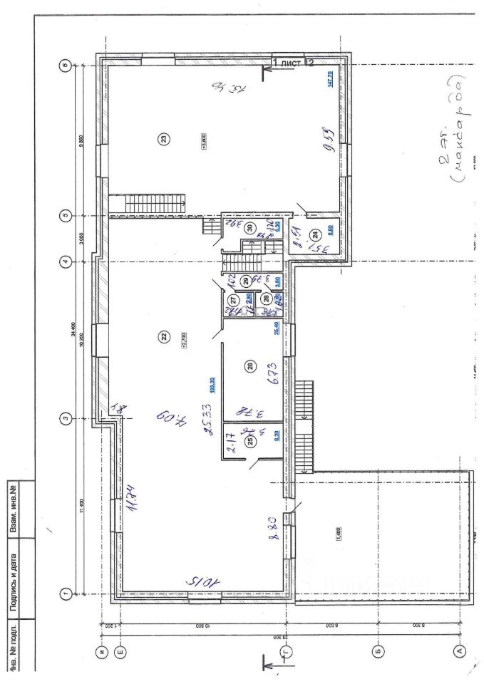
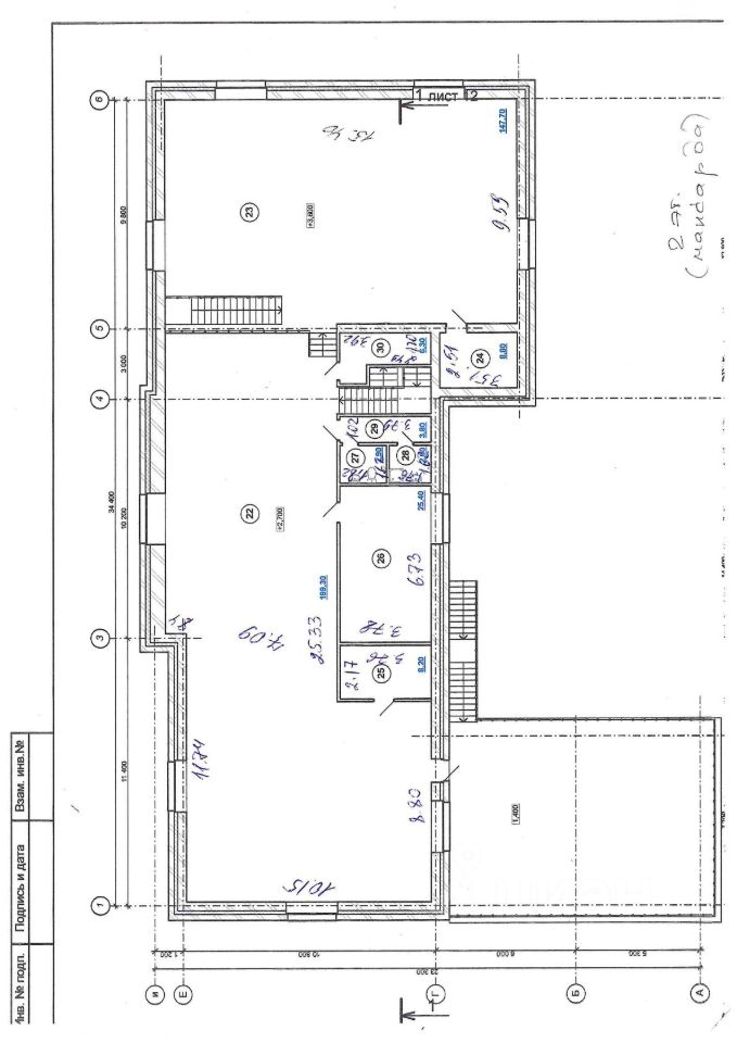
- ЗЕМЕЛЬНЫЙ УЧАСТОК имеет площадь 992 кв.м. - ОБЪЕКТ НЕЗАВЕРШЕННОГО СТРОИТЕЛЬСТВА- площадь 860.2 кв.м., степень готовности 61%. Вид права на Земельный участок и Объект незавершенный строительством - собственность, оба объекта недвижимости зарегистрированы в Росреестре. Кадастровый номер земельного участка: 66:45:0100104:26. Категория: земли населенных пунктов, виды разрешенного использования: объекты бытового обслуживания населению. Участок застроен на 2/3 площади. Кадастровый номер Объекта незавершенного строительством: 66:45:0100104:138, проектируемое назначение- Нежилое. | Площадь 1-го этажа 451,9 кв.м. 3 основных входа с улицы и 3 со двора. Три отдельных помещения с отдельными входами с улицы имеют площади 143,2 кв,м., 67,2 кв.м., 62,8 кв.м., плюс коридоры, хозяйственно- бытовые помещения и кабинеты. Складские площади (свой въезд со двора) с подъездом прямо до них -38,8 кв.м. и 37,6 кв.м. Площадь мансардного этажа 408,3 кв.м. со свободной планировкой. Стены кирпичные, перекрытия ж/б, окна пластиковые, кровля металлопрофиль. Цоколь: 160,7 кв.м., с окнами, высокими потолками и двумя входами.
Сети: Здание подключено к Электрическим сетям своим отдельным подземным кабелем с очень большим запасом от ТП в шаговой доступности. Разрешенная к потреблению мощность в настоящее время составляет 38 кВт, получение отпуска большей мощности возможно. Заведено водоснабжение и канализация. Теплоснабжение: В настоящее время отсутствует. Есть две технические возможности подключения, одна к газовым сетям (2023 г.) и другая к центральному теплоснабжению.
Комплекс располагается вдоль ул. Ленина, на углу с ул. Революционной, рядом с бывшим Райсполкомом, сейчас Управлением образования с одной стороны и строительным магазином Строй- Регион с другой. Территория комплекса имеет твердое покрытие и заезд с ул. Революционной для автомобильного транспорта погрузки/разгрузки, или стоянки. Земельный участок предполагает возможность оспользования строения для очень многих видов деятельности, от магазинов, банков, предприятий общественного питания, объектов здравоохранения и гостиничного обслуживания до размещения учреждений среднего и высшего профессионального образования. Достраивайте под свой вид деятельности, вводите в эксплуатацию, ведите бизнес, или сдавайте в аренду.