Если цена в объявлении изменится, мы сразу сообщим вам об этом на электронную почту.
Нажимая «Подписаться», вы соглашаетесь с правилами.
продам 1-к, Мира, 4710 769 580 ₽
5 июня
Дата публикации объявления
Обн. сегодня
Дата обновления объявления
10
Количество просмотров (+ просмотры за сегодня)
Спецпредложение
Турбо x8
228 169 ₽/м²
Чистая продажа
Термин "Чистая продажа" означает, что в квартире никто не прописан или
есть куда выписаться и вывезти вещи. Это лучший вариант для покупателя.
Вероятность срыва сделки минимальна.
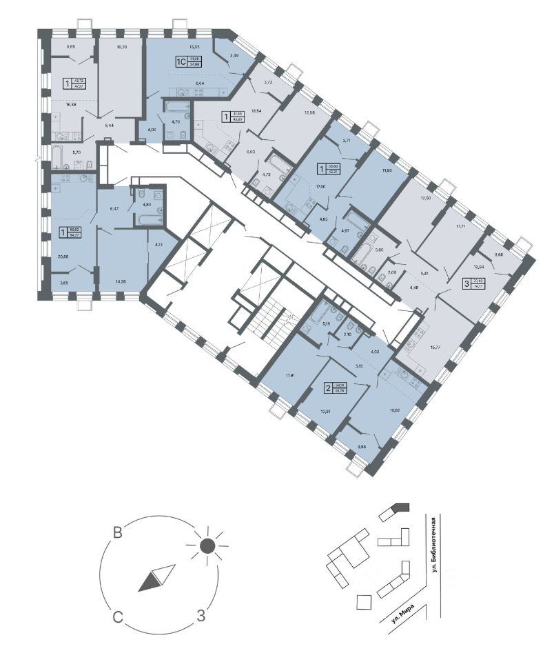
Квартира
Общая площадь47,2 м2
Жилая площадь16,2 м2
Количество лоджий1
Тип собственностисвидетельство о праве собственности
Проектная декларация опубликована на сайте наш.дом.рф
Компаунд ''Проспект Мира'' флагманский проект компании ''Первостроитель'', финалист премии Urban Awards, входит в ТОП 5 жилых комплексов России по версии Единого ресурса застройщика. Это закрытый комплекс с развитой инфраструктурой, фонтаном, зонами отдыха, детскими площадками, спортивными зонами и двухуровневым паркингом. Дом по адресу ул. Мира 47/6 состоит из двух секций переменной этажности (5 и 30 этажей, 27 из них жилые), корпус которых развернут внутрь дворового пространства компаунда. В доме просторные холлы с зонами ожидания и колясочные. На территории компаунда расположен мультифункциональный центр, в котором расположены собственные бизнесы застройщика: фитнес-клуб с 24-х метровым бассейном и СПА зоной, ресторанный комплекс, бильярдный клуб и отель.
Компаунд ''Проспект Мира'' флагманский проект компании ''Первостроитель'', финалист премии Urban Awards, входит в ТОП 5 жилых комплексов России по версии Единого ресурса застройщика. Это закрытый комплекс с развитой инфраструктурой, фонтаном, зонами отдыха, детскими площадками, спортивными зонами и двухуровневым паркингом. Дом по адресу ул. Мира 47/6 состоит из двух секций переменной этажности (5 и 30 этажей, 27 из них жилые), корпус которых развернут внутрь дворового пространства компаунда. В доме просторные холлы с зонами ожидания и колясочные. На территории компаунда расположен мультифункциональный центр, в котором расположены собственные бизнесы застройщика: фитнес-клуб с 24-х метровым бассейном и СПА зоной, ресторанный комплекс, бильярдный клуб и отель. Особое внимание в проекте уделено внутреннему дворовому пространству: во дворе выполнен ландшафтный дизайн с оригинальными клумбами, деревьями, кустарниками и вечерней подсветкой. Безопасность домов обеспечивают камеры наблюдения, расположенные по периметру зданий, в местах общего пользования, на этажах и лифтах. Квартиры отличаются продуманными планировками (от 34,7 до 74,4 м²) и высокими потолками (от 2,7 до 3 м). Дома имеют класс энергоэффективности А и целый ряд энергоэффективных решений:
повышенную теплоизоляцию наружных стен, специальные оконные конструкции, сохраняющие тепло зимой и не нагревающие комнаты летом, уникальную для многоквартирных домов индивидуальную систему приточно-вытяжной вентиляции с рекуперацией воздуха, что даёт постоянное обновление воздуха