Если цена в объявлении изменится, мы сразу сообщим вам об этом на электронную почту.
Нажимая «Подписаться», вы соглашаетесь с правилами.
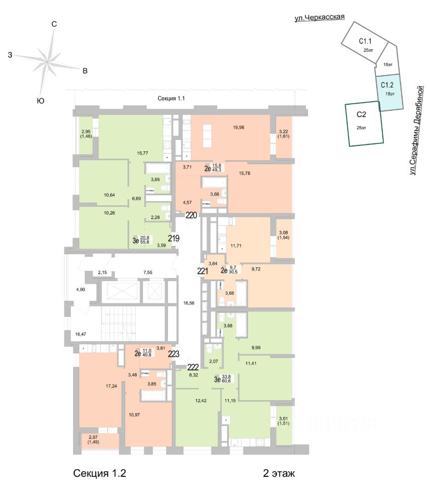
продам 3-к, Черкасская, гп 29 928 090 ₽
6 авг
Дата публикации объявления
Обн. сегодня
Дата обновления объявления
9
Количество просмотров (+ просмотры за сегодня)
Топ
Турбо x8
163 965 ₽/м²
Чистая продажа
Термин "Чистая продажа" означает, что в квартире никто не прописан или
есть куда выписаться и вывезти вещи. Это лучший вариант для покупателя.
Вероятность срыва сделки минимальна.
Квартира
Общая площадь60,55 м2
Жилая площадь33,8 м2
Кухня11,2 м2
Количество лоджий1
Тип собственностисвидетельство о праве собственности
Застройщик - Специализированный застройщик «Философия Идеалистов», ООО. Проектная декларация опубликована на сайте наш.дом.рф
''Философия Идеалистов на Черкасской'': новый уровень городской жизни Квартал в сердце Верх-Исетского района. Расположение и архитектура.
''Философия Идеалистов на Черкасской'' строится в Верх-Исетском районе Екатеринбурга в границах улиц — Черкасская и Серафимы Дерябиной. Квартал включает три жилых корпуса переменной этажности, выполненные в единой архитектурной концепции — от 16 до 25 этажей и 6-уровневый наземный паркинг, которые объединяет закрытая дворовая территория. Философия комфорта.
Концепция жизни. Проект создан для тех, кто ценит качество жизни и безопасность. Каждый элемент инфраструктуры направлен на создание комфортной среды для жителей:
Собственная социальная инфраструктура: детский сад и современный соседский центр.
''Философия Идеалистов на Черкасской'': новый уровень городской жизни Квартал в сердце Верх-Исетского района. Расположение и архитектура.
''Философия Идеалистов на Черкасской'' строится в Верх-Исетском районе Екатеринбурга в границах улиц — Черкасская и Серафимы Дерябиной. Квартал включает три жилых корпуса переменной этажности, выполненные в единой архитектурной концепции — от 16 до 25 этажей и 6-уровневый наземный паркинг, которые объединяет закрытая дворовая территория. Философия комфорта.
Концепция жизни. Проект создан для тех, кто ценит качество жизни и безопасность. Каждый элемент инфраструктуры направлен на создание комфортной среды для жителей:
Собственная социальная инфраструктура: детский сад и современный соседский центр.
Открытая терраса для приятного времяпрепровождения на свежем воздухе, динамичных тренировок и умиротворяющих занятий йогой.
Эксклюзивные форматы жилья жилого комплекса: двухуровневые квартиры и планировки с террасами.
Премиальный сервис: консьерж-служба на первых этажах.
Энергоэффективность: автономная газовая котельная для оптимизации коммунальных платежей.
Комфорт в деталях. Продуманная инфраструктура:
Современные колясочные и велосипедные помещения. Удобные комнаты гигиены. Система контроля доступа. Пост охраны.
Уникальные преимущества: Разнообразие планировок. Во второй секции комплекса представлены квартиры с предчистовой отделкой. Это возможность создать интерьер по своему вкусу. В жилом комплексе предусмотрен соседский центр, который станет пространством для развития и общения. Здесь могут проводиться: образовательные курсы и лекции, творческие мастер-классы, деловые встречи и развлекательные мероприятия. ''Философия Идеалистов на Черкасской'' — это больше, чем просто жилье. Это сообщество людей, разделяющих общие ценности и стремление к качественной жизни. Каждое мгновение здесь наполняется новым смыслом, а каждая секунда приносит радость и удовлетворение.