Если цена в объявлении изменится, мы сразу сообщим вам об этом на электронную почту.
Нажимая «Подписаться», вы соглашаетесь с правилами.
продам коттедж, Апельсиновая13 900 000 ₽
9 сен
Дата публикации объявления
Обн. сегодня
Дата обновления объявления
32
Количество просмотров (+ просмотры за сегодня)
Спецпредложение
Турбо x8
90 260 ₽/м²
Чистая продажа
Термин "Чистая продажа" означает, что в квартире никто не прописан или
есть куда выписаться и вывезти вещи. Это лучший вариант для покупателя.
Вероятность срыва сделки минимальна.
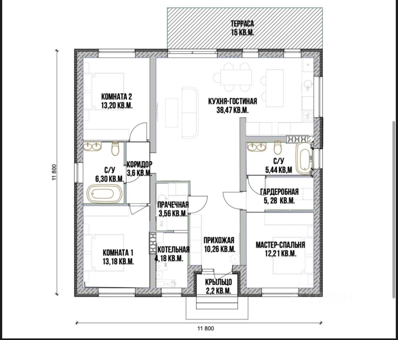
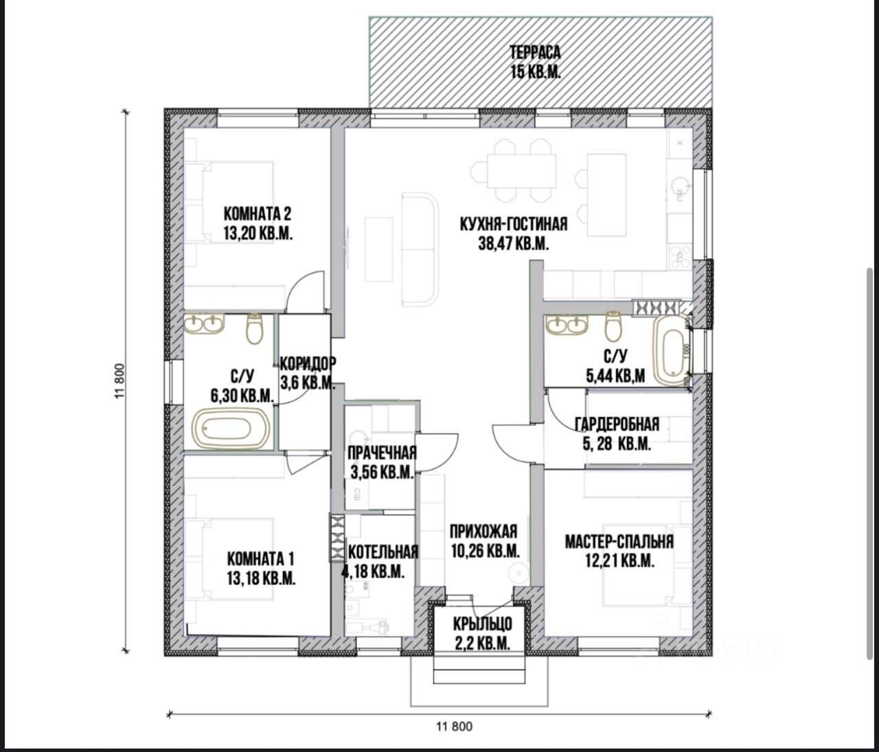
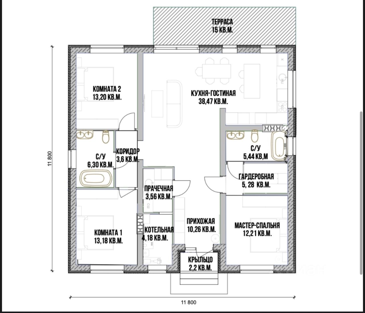
Этажей1
Площадь участка8 соток
Общая площадь154 м2
ЭлектричествоЕсть
Газоснабжениецентральное
Готовый дом в Алых Парусах — лучший коттеджный посёлок бизнес-класса, всего 17 минут от Екатеринбурга!
• В коттеджном поселке уже есть школа, детский сад, спортзал, супермаркеты и кофейня — как в городе, но без суеты и пыли.
• Нет стройки вокруг - посёлок полностью готов, все участки давно распроданы и дома построены. Стоимость земли на сегодня здесь от 550 000 ? за сотку.
• Одноэтажный дом 154 м² с панорамными окнами, на участке 8 соток.
• Современные коммуникации, фундамент-плита, предчистовая отделка, разведена электрика.
• Возможна отделка под ключ за 1,5 месяца — под любой бюджет.
• Это дом, где ребёнок идёт пешком в школу, а вы пьёте кофе на террасе и дышите свежим лесным воздухом.
Готовый дом в Алых Парусах — лучший коттеджный посёлок бизнес-класса, всего 17 минут от Екатеринбурга!
• В коттеджном поселке уже есть школа, детский сад, спортзал, супермаркеты и кофейня — как в городе, но без суеты и пыли.
• Нет стройки вокруг - посёлок полностью готов, все участки давно распроданы и дома построены. Стоимость земли на сегодня здесь от 550 000 ? за сотку.
• Одноэтажный дом 154 м² с панорамными окнами, на участке 8 соток.
• Современные коммуникации, фундамент-плита, предчистовая отделка, разведена электрика.
• Возможна отделка под ключ за 1,5 месяца — под любой бюджет.
• Это дом, где ребёнок идёт пешком в школу, а вы пьёте кофе на террасе и дышите свежим лесным воздухом.
Такого комфорта и готовности нет ни в одном другом коттеджном посёлке рядом с Екатеринбургом!
• Звоните прямо сейчас — предложение уникальное, дом готов.
Дом в котором удобно расти и детям и мечтам. •2 Школы •2 дет. сада •Аптека •Тренажерный зал с сауной и групповыми тренировками. •Новая Пятерочка,Монетка,Пивко,Мясной Чабан. •Отличная кофейня со свежей выпечкой каждое утро. •Строитльный двор. •Кафе уличной кухни. • Фруктово овощной магазин Амбар. •WB •OZON •2 Детские площадки (зимой залитый хоккейный корт, летом газон для игры футбол) песчаная волейбольная площадка. •Выход к озеру и дорога к лесу.