Если цена в объявлении изменится, мы сразу сообщим вам об этом на электронную почту.
Нажимая «Подписаться», вы соглашаетесь с правилами.
продам 3-к, Суворова, 386 500 000 ₽
26 сен
Дата публикации объявления
Обн. 23 мая
Дата обновления объявления
15
Количество просмотров (+ просмотры за сегодня)
80 148 ₽/м²
Чистая продажа
Термин "Чистая продажа" означает, что в квартире никто не прописан или
есть куда выписаться и вывезти вещи. Это лучший вариант для покупателя.
Вероятность срыва сделки минимальна.
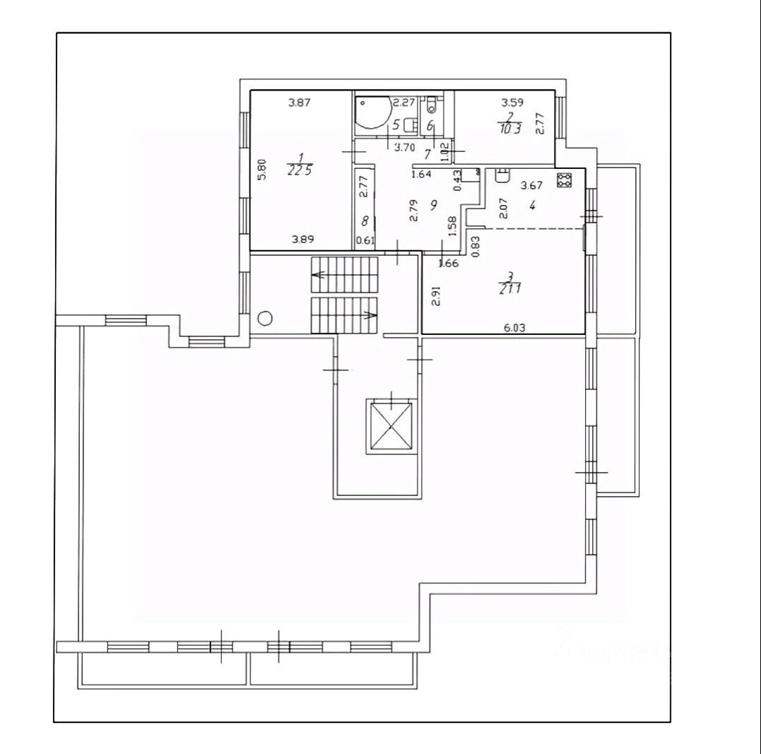
Арт. 113440850 В продаже просторная 3-ная квартира на 8 этаже девятиэтажного жилого дома по ул. Суворова, д. 38
КВАРТИРА: Улучшенная планировка, площадь - 81,1 кв.м., жилая 53,9 кв.м (комнаты 22,5 кв.м.+10,3 кв.м.+ 21,1 кв.м), кухня 7,5 кв.м. Комнаты в квартире правильной формы, изолированы. Перепланировка узаконена. В квартире выполнен качественный ремонт: на полу ламинат, в зоне прихожей и кухне - кафель, на кухне тёплый пол, стены нейтральных тонов, натяжной потолок, кроме детской комнаты. Утепленная застекленная лоджия, обшита деревом, с системами хранения и полотолочными сушилками для белья. Ванная с туалетом разделены, в кафеле. Все коммуникации и электропроводка заменены.
Арт. 113440850 В продаже просторная 3-ная квартира на 8 этаже девятиэтажного жилого дома по ул. Суворова, д. 38
КВАРТИРА: Улучшенная планировка, площадь - 81,1 кв.м., жилая 53,9 кв.м (комнаты 22,5 кв.м.+10,3 кв.м.+ 21,1 кв.м), кухня 7,5 кв.м. Комнаты в квартире правильной формы, изолированы. Перепланировка узаконена. В квартире выполнен качественный ремонт: на полу ламинат, в зоне прихожей и кухне - кафель, на кухне тёплый пол, стены нейтральных тонов, натяжной потолок, кроме детской комнаты. Утепленная застекленная лоджия, обшита деревом, с системами хранения и полотолочными сушилками для белья. Ванная с туалетом разделены, в кафеле. Все коммуникации и электропроводка заменены.
ПРЕИМУЩЕСТВА: • шикарный вид из окна • отличное расположение дома, удачная планировка квартиры • стремительно развивающийся и престижный район города • спокойствие, безопасность и комфорт проживания, спокойные соседи Квартира готова к сделке, прямая продажа. Без арестов 4 собственника
ДОМ: 1992 г. постройки, панельный, с железобетонные перекрытиями.
ИНФРАСТРУКТУРА: В шаговой доступности школа 34, детский сад 1, 103, фитнес-клуб, торговые центры, продуктовые и продовольственные магазины, кафе, кинотеатр, остановки общественного транспорта в любом направлении.
В ПОДАРОК ПОКУПАТЕЛЮ кухонный гарнитур ''Lorena'' обеденный стол и стулья вытяжка газовая варочная панель духовой шкаф комод и шкаф в спальне В прихожей встроенный шкаф-купе.