logo
N1.RU — новая улучшенная версия Е1.Недвижимость
Чтобы вернуться на старый сайт Е1.Недвижимость, перейдите по ссылке в нижней части сайта N1.RU
  • Продажа
  • Аренда
  • Новостройки
  • Журнал
  • Компании
  • Шаблоны документов
  • Налоговый вычет
  • Еще
  • Личный кабинет
    • Вход
    • Регистрация
    • Свердловская область
  • Добавить объявление
Тип недвижимости
Свердловская область
Начните вводить или выберите объект в выпадающем списке
Количество комнат
Цена
  1. Недвижимость в Свердловской области
  2. Продажа
  3. Квартиры
  4. Новостройки
  5. 2-комнатные
  6. 11204 объявления

Продажа двухкомнатных квартир в Свердловской области

  • Без посредников74
За все время
Сортировка по умолчанию
СпискомСписком
ТаблицейТаблицей
На картеНа карте
Открыть поиск по карте

По вашему запросу объявлений не найдено

1/21
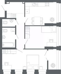
2-к, Мира, 47/7 Показать на карте
Кировский район, Втузгородок
Екатеринбург, Проспект Мира. Компаунд
Компаунд ''Проспект Мира'' флагманский проект компании ''Первостроитель'', финалист премии Urban Awards, входит в ТОП 5 жилых комплексов России по версии Единого ресурса застройщика.Это закрытый комплекс с развитой инфраструктурой, фонтаном, зонами отдыха, детскими площадками, спортивными зонами и двухуровневым паркингом. Дом по адресу ул. Мира 47/7 состоит из двух секций, корпус которых развернут внутрь дворового пространства компаунда. В доме просторные холлы с зонами ожидания и колясочные.На территории компаунда расположен мультифункциональный центр, в котором расположены собственные бизнесы застройщика: фитнес-клуб с 24-х метровым бассейном и СПА зоной, ресторанный комплекс, бильярдный клуб и отель.Особое внимание в проекте уделено внутреннему дворовому пространству: во дворе выполнен ландшафтный дизайн с оригинальными клумбами, деревьями, кустарниками и вечерней подсветкой. Безопасность домов обеспечивают камеры наблюдения, расположенные по периметру зданий, в местах общего пользования, на этажах и лифтах.Квартиры отличаются продуманными планировками (от 30,6 до 110 м²) и высокими потолками (от 2,75 до 3,5 м). Дома имеют класс энергоэффективности А и целый ряд энергоэффективных решений:повышенную теплоизоляцию наружных стен,специальные оконные конструкции,сохраняющие тепло зимой и не нагревающие комнаты летом,уникальную для многоквартирных домов индивидуальную систему приточно-вытяжной вентиляции с рекуперацией воздуха, что даёт постоянное обновление воздуха
До центра ~ 25 мин
Приблизительное время на общественном транспорте до площадь 1905 года (Центр) – 25 мин
63 м2
19 / 24 этаж
Кирпич - монолит
  • Показать контакты
  • Добавить в избранное
63 м2
19 / 24 этаж
Кирпич - монолит
14 707 240 
230 521 /м2
Новостройка,
дом сдан
1/21
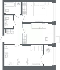
2-к, Мира, 47/7 Показать на карте
Кировский район, Втузгородок
Екатеринбург, Проспект Мира. Компаунд
Компаунд ''Проспект Мира'' флагманский проект компании ''Первостроитель'', финалист премии Urban Awards, входит в ТОП 5 жилых комплексов России по версии Единого ресурса застройщика.Это закрытый комплекс с развитой инфраструктурой, фонтаном, зонами отдыха, детскими площадками, спортивными зонами и двухуровневым паркингом. Дом по адресу ул. Мира 47/7 состоит из двух секций, корпус которых развернут внутрь дворового пространства компаунда. В доме просторные холлы с зонами ожидания и колясочные.На территории компаунда расположен мультифункциональный центр, в котором расположены собственные бизнесы застройщика: фитнес-клуб с 24-х метровым бассейном и СПА зоной, ресторанный комплекс, бильярдный клуб и отель.Особое внимание в проекте уделено внутреннему дворовому пространству: во дворе выполнен ландшафтный дизайн с оригинальными клумбами, деревьями, кустарниками и вечерней подсветкой. Безопасность домов обеспечивают камеры наблюдения, расположенные по периметру зданий, в местах общего пользования, на этажах и лифтах.Квартиры отличаются продуманными планировками (от 30,6 до 110 м²) и высокими потолками (от 2,75 до 3,5 м). Дома имеют класс энергоэффективности А и целый ряд энергоэффективных решений:повышенную теплоизоляцию наружных стен,специальные оконные конструкции,сохраняющие тепло зимой и не нагревающие комнаты летом,уникальную для многоквартирных домов индивидуальную систему приточно-вытяжной вентиляции с рекуперацией воздуха, что даёт постоянное обновление воздуха
До центра ~ 25 мин
Приблизительное время на общественном транспорте до площадь 1905 года (Центр) – 25 мин
75 м2
24 / 24 этаж
Кирпич - монолит
  • Показать контакты
  • Добавить в избранное
75 м2
24 / 24 этаж
Кирпич - монолит
16 811 900 
223 266 /м2
Новостройка,
дом сдан
1/21
2-к, Мира, 47/7 Показать на карте
Кировский район, Втузгородок
Екатеринбург, Проспект Мира. Компаунд
Компаунд ''Проспект Мира'' флагманский проект компании ''Первостроитель'', финалист премии Urban Awards, входит в ТОП 5 жилых комплексов России по версии Единого ресурса застройщика.Это закрытый комплекс с развитой инфраструктурой, фонтаном, зонами отдыха, детскими площадками, спортивными зонами и двухуровневым паркингом. Дом по адресу ул. Мира 47/7 состоит из двух секций, корпус которых развернут внутрь дворового пространства компаунда. В доме просторные холлы с зонами ожидания и колясочные.На территории компаунда расположен мультифункциональный центр, в котором расположены собственные бизнесы застройщика: фитнес-клуб с 24-х метровым бассейном и СПА зоной, ресторанный комплекс, бильярдный клуб и отель.Особое внимание в проекте уделено внутреннему дворовому пространству: во дворе выполнен ландшафтный дизайн с оригинальными клумбами, деревьями, кустарниками и вечерней подсветкой. Безопасность домов обеспечивают камеры наблюдения, расположенные по периметру зданий, в местах общего пользования, на этажах и лифтах.Квартиры отличаются продуманными планировками (от 30,6 до 110 м²) и высокими потолками (от 2,75 до 3,5 м). Дома имеют класс энергоэффективности А и целый ряд энергоэффективных решений:повышенную теплоизоляцию наружных стен,специальные оконные конструкции,сохраняющие тепло зимой и не нагревающие комнаты летом,уникальную для многоквартирных домов индивидуальную систему приточно-вытяжной вентиляции с рекуперацией воздуха, что даёт постоянное обновление воздуха
До центра ~ 25 мин
Приблизительное время на общественном транспорте до площадь 1905 года (Центр) – 25 мин
77 м2
12 / 24 этаж
Кирпич - монолит
  • Показать контакты
  • Добавить в избранное
77 м2
12 / 24 этаж
Кирпич - монолит
15 345 500 
199 034 /м2
Новостройка,
дом сдан
1/21
2-к, Мира, 47/7 Показать на карте
Кировский район, Втузгородок
Екатеринбург, Проспект Мира. Компаунд
Компаунд ''Проспект Мира'' флагманский проект компании ''Первостроитель'', финалист премии Urban Awards, входит в ТОП 5 жилых комплексов России по версии Единого ресурса застройщика.Это закрытый комплекс с развитой инфраструктурой, фонтаном, зонами отдыха, детскими площадками, спортивными зонами и двухуровневым паркингом. Дом по адресу ул. Мира 47/7 состоит из двух секций, корпус которых развернут внутрь дворового пространства компаунда. В доме просторные холлы с зонами ожидания и колясочные.На территории компаунда расположен мультифункциональный центр, в котором расположены собственные бизнесы застройщика: фитнес-клуб с 24-х метровым бассейном и СПА зоной, ресторанный комплекс, бильярдный клуб и отель.Особое внимание в проекте уделено внутреннему дворовому пространству: во дворе выполнен ландшафтный дизайн с оригинальными клумбами, деревьями, кустарниками и вечерней подсветкой. Безопасность домов обеспечивают камеры наблюдения, расположенные по периметру зданий, в местах общего пользования, на этажах и лифтах.Квартиры отличаются продуманными планировками (от 30,6 до 110 м²) и высокими потолками (от 2,75 до 3,5 м). Дома имеют класс энергоэффективности А и целый ряд энергоэффективных решений:повышенную теплоизоляцию наружных стен,специальные оконные конструкции,сохраняющие тепло зимой и не нагревающие комнаты летом,уникальную для многоквартирных домов индивидуальную систему приточно-вытяжной вентиляции с рекуперацией воздуха, что даёт постоянное обновление воздуха
До центра ~ 25 мин
Приблизительное время на общественном транспорте до площадь 1905 года (Центр) – 25 мин
64 м2
2 / 24 этаж
Кирпич - монолит
  • Показать контакты
  • Добавить в избранное
64 м2
2 / 24 этаж
Кирпич - монолит
13 023 700 
203 495 /м2
Новостройка,
дом сдан
1/21
2-к, Мира, 47/7 Показать на карте
Кировский район, Втузгородок
Екатеринбург, Проспект Мира. Компаунд
Компаунд ''Проспект Мира'' флагманский проект компании ''Первостроитель'', финалист премии Urban Awards, входит в ТОП 5 жилых комплексов России по версии Единого ресурса застройщика.Это закрытый комплекс с развитой инфраструктурой, фонтаном, зонами отдыха, детскими площадками, спортивными зонами и двухуровневым паркингом. Дом по адресу ул. Мира 47/7 состоит из двух секций, корпус которых развернут внутрь дворового пространства компаунда. В доме просторные холлы с зонами ожидания и колясочные.На территории компаунда расположен мультифункциональный центр, в котором расположены собственные бизнесы застройщика: фитнес-клуб с 24-х метровым бассейном и СПА зоной, ресторанный комплекс, бильярдный клуб и отель.Особое внимание в проекте уделено внутреннему дворовому пространству: во дворе выполнен ландшафтный дизайн с оригинальными клумбами, деревьями, кустарниками и вечерней подсветкой. Безопасность домов обеспечивают камеры наблюдения, расположенные по периметру зданий, в местах общего пользования, на этажах и лифтах.Квартиры отличаются продуманными планировками (от 30,6 до 110 м²) и высокими потолками (от 2,75 до 3,5 м). Дома имеют класс энергоэффективности А и целый ряд энергоэффективных решений:повышенную теплоизоляцию наружных стен,специальные оконные конструкции,сохраняющие тепло зимой и не нагревающие комнаты летом,уникальную для многоквартирных домов индивидуальную систему приточно-вытяжной вентиляции с рекуперацией воздуха, что даёт постоянное обновление воздуха
До центра ~ 25 мин
Приблизительное время на общественном транспорте до площадь 1905 года (Центр) – 25 мин
76 м2
11 / 24 этаж
Кирпич - монолит
  • Показать контакты
  • Добавить в избранное
76 м2
11 / 24 этаж
Кирпич - монолит
15 260 900 
199 750 /м2
Новостройка,
дом сдан
1/21
2-к, Мира, 47/7 Показать на карте
Кировский район, Втузгородок
Екатеринбург, Проспект Мира. Компаунд
Компаунд ''Проспект Мира'' флагманский проект компании ''Первостроитель'', финалист премии Urban Awards, входит в ТОП 5 жилых комплексов России по версии Единого ресурса застройщика.Это закрытый комплекс с развитой инфраструктурой, фонтаном, зонами отдыха, детскими площадками, спортивными зонами и двухуровневым паркингом. Дом по адресу ул. Мира 47/7 состоит из двух секций, корпус которых развернут внутрь дворового пространства компаунда. В доме просторные холлы с зонами ожидания и колясочные.На территории компаунда расположен мультифункциональный центр, в котором расположены собственные бизнесы застройщика: фитнес-клуб с 24-х метровым бассейном и СПА зоной, ресторанный комплекс, бильярдный клуб и отель.Особое внимание в проекте уделено внутреннему дворовому пространству: во дворе выполнен ландшафтный дизайн с оригинальными клумбами, деревьями, кустарниками и вечерней подсветкой. Безопасность домов обеспечивают камеры наблюдения, расположенные по периметру зданий, в местах общего пользования, на этажах и лифтах.Квартиры отличаются продуманными планировками (от 30,6 до 110 м²) и высокими потолками (от 2,75 до 3,5 м). Дома имеют класс энергоэффективности А и целый ряд энергоэффективных решений:повышенную теплоизоляцию наружных стен,специальные оконные конструкции,сохраняющие тепло зимой и не нагревающие комнаты летом,уникальную для многоквартирных домов индивидуальную систему приточно-вытяжной вентиляции с рекуперацией воздуха, что даёт постоянное обновление воздуха
До центра ~ 25 мин
Приблизительное время на общественном транспорте до площадь 1905 года (Центр) – 25 мин
66 м2
21 / 24 этаж
Кирпич - монолит
  • Показать контакты
  • Добавить в избранное
66 м2
21 / 24 этаж
Кирпич - монолит
15 503 420 
232 784 /м2
Новостройка,
дом сдан
1/21
2-к, Мира, 47/7 Показать на карте
Кировский район, Втузгородок
Екатеринбург, Проспект Мира. Компаунд
Компаунд ''Проспект Мира'' флагманский проект компании ''Первостроитель'', финалист премии Urban Awards, входит в ТОП 5 жилых комплексов России по версии Единого ресурса застройщика.Это закрытый комплекс с развитой инфраструктурой, фонтаном, зонами отдыха, детскими площадками, спортивными зонами и двухуровневым паркингом. Дом по адресу ул. Мира 47/7 состоит из двух секций, корпус которых развернут внутрь дворового пространства компаунда. В доме просторные холлы с зонами ожидания и колясочные.На территории компаунда расположен мультифункциональный центр, в котором расположены собственные бизнесы застройщика: фитнес-клуб с 24-х метровым бассейном и СПА зоной, ресторанный комплекс, бильярдный клуб и отель.Особое внимание в проекте уделено внутреннему дворовому пространству: во дворе выполнен ландшафтный дизайн с оригинальными клумбами, деревьями, кустарниками и вечерней подсветкой. Безопасность домов обеспечивают камеры наблюдения, расположенные по периметру зданий, в местах общего пользования, на этажах и лифтах.Квартиры отличаются продуманными планировками (от 30,6 до 110 м²) и высокими потолками (от 2,75 до 3,5 м). Дома имеют класс энергоэффективности А и целый ряд энергоэффективных решений:повышенную теплоизоляцию наружных стен,специальные оконные конструкции,сохраняющие тепло зимой и не нагревающие комнаты летом,уникальную для многоквартирных домов индивидуальную систему приточно-вытяжной вентиляции с рекуперацией воздуха, что даёт постоянное обновление воздуха
До центра ~ 25 мин
Приблизительное время на общественном транспорте до площадь 1905 года (Центр) – 25 мин
66 м2
16 / 24 этаж
Кирпич - монолит
  • Показать контакты
  • Добавить в избранное
66 м2
16 / 24 этаж
Кирпич - монолит
14 711 000 
222 557 /м2
Новостройка,
дом сдан
1/21
2-к, Мира, 47/7 Показать на карте
Кировский район, Втузгородок
Екатеринбург, Проспект Мира. Компаунд
Компаунд ''Проспект Мира'' флагманский проект компании ''Первостроитель'', финалист премии Urban Awards, входит в ТОП 5 жилых комплексов России по версии Единого ресурса застройщика.Это закрытый комплекс с развитой инфраструктурой, фонтаном, зонами отдыха, детскими площадками, спортивными зонами и двухуровневым паркингом. Дом по адресу ул. Мира 47/7 состоит из двух секций, корпус которых развернут внутрь дворового пространства компаунда. В доме просторные холлы с зонами ожидания и колясочные.На территории компаунда расположен мультифункциональный центр, в котором расположены собственные бизнесы застройщика: фитнес-клуб с 24-х метровым бассейном и СПА зоной, ресторанный комплекс, бильярдный клуб и отель.Особое внимание в проекте уделено внутреннему дворовому пространству: во дворе выполнен ландшафтный дизайн с оригинальными клумбами, деревьями, кустарниками и вечерней подсветкой. Безопасность домов обеспечивают камеры наблюдения, расположенные по периметру зданий, в местах общего пользования, на этажах и лифтах.Квартиры отличаются продуманными планировками (от 30,6 до 110 м²) и высокими потолками (от 2,75 до 3,5 м). Дома имеют класс энергоэффективности А и целый ряд энергоэффективных решений:повышенную теплоизоляцию наружных стен,специальные оконные конструкции,сохраняющие тепло зимой и не нагревающие комнаты летом,уникальную для многоквартирных домов индивидуальную систему приточно-вытяжной вентиляции с рекуперацией воздуха, что даёт постоянное обновление воздуха
До центра ~ 25 мин
Приблизительное время на общественном транспорте до площадь 1905 года (Центр) – 25 мин
63 м2
16 / 24 этаж
Кирпич - монолит
  • Показать контакты
  • Добавить в избранное
63 м2
16 / 24 этаж
Кирпич - монолит
14 374 480 
226 014 /м2
Новостройка,
дом сдан
1/16
2-к, Сони Морозовой, 165 стр. Показать на карте
Центр, Центр
Екатеринбург, Форма
Продаётся 2-комнатная квартира в строящемся доме (Секция 1), срок сдачи: III-кв. 2026, общей площадью 74.1 кв.м., на 1 этаже. Новый жилой комплекс ''Форма'' от застройщика ''Форум-Групп'' расположен по адресу: г. Екатеринбург, улица Сони Морозовой.
До центра ~ 25 мин
Приблизительное время на общественном транспорте до площадь 1905 года (Центр) – 25 мин
74 м2
1 / 29 этаж
Кирпич - монолит
  • Показать контакты
  • Добавить в избранное
74 м2
1 / 29 этаж
Кирпич - монолит
14 099 748 
190 280 /м2
Новостройка,
III-2026
1/21
2-к, Репина, 24 Показать на карте
Верх-Исетский район, Юго-Западный
Екатеринбург, Жилой комплекс «1:1»
Мы нашли баланс в ''1:1''. Пространство, где эмоциональные преимущества и рациональные выгоды подняты на равную высоту. Комфорт, соответствующий вашему статусу. Добро пожаловать в Даблхаус ''1:1'' — дом для жизни в равновесии! Место-В даблхаусе спокойствие и энергия дополняют друг друга. Даблхаус ''1:1'' расположен в удачном месте — на перекрёстке Репина и Посадской. Здесь шум главных транспортных артерий не потревожит ваш сон, а близость к центру города зарядит энергией — до Центрального стадиона рукой подать. Полчаса неспешной прогулки или 15 минут на своем автомобиле — и вы любуетесь видами на Плотинке. Облик-Уникальный архитектурный проект Даблхаус ''1:1'' вдохновлен традициями русского деревянного зодчества. Сложная многоярусная форма, воссозданная с учетом современных стандартов качества, стала системой для комфортной жизни. Внешний облик напоминает о небоскребах в стиле ар-деко — эклектичном сочетании эстетики и функциональности. Величественные белые башни с охристыми акцентами притягивают взгляд, а стреловидные выступы подчеркивают высоту домов. Под стать внешнему облику и внутренняя отделка: стиль выдержан в каждой детали. Общественные пространства даблхауса — не просто проходные зоны. Начинайте день в уютном лобби. Встречайте друзей и соседей в общественной гостиной с библиотекой: здесь легко завязать разговор, познакомиться с приятными людьми и расслабиться с книгой после насыщенного дня. Двор-Почувствуйте семейное спокойствие в закрытом дворе с безопасной игровой площадкой. Во дворе даблхауса нет машин, а газоны и аллеи делят его на удобные уровни. Пока дети гоняют мяч и качаются на качелях, а подростки делают трюки на скейте, взрослые могут отдохнуть в небольшом амфитеатре. Эстетику двора создают фотогеничный арт-объект и ландшафтные элементы. На территории Даблхауса ''1:1'' легко ориентироваться — ваши гости точно найдут дорогу, а дети всегда будут под присмотром. Планировки-В Даблхаусе ''1:1'' созданы 376 уникальных планировок — вы легко найдете ту самую, идеальную для вашего образа жизни. В 1 секции квартиры представлены с отделкой ''под чистовую'', во 2й - квартиры имеют свободную планировку и черновую отделку. Вас ждут функциональные евроформаты, уютные студии и видовые квартиры, откуда весь город как на ладони. В каждой квартире — большие окна, которые обеспечат отличную инсоляцию. До любого этажа вас быстро доставят скоростные лифты. В Даблхаус ''1:1'' вы всегда живете на высшем уровне. Безопасность-В Даблхаусе ''1:1'' вы можете не волноваться о безопасности — спокойствие на территории обеспечат круглосуточное видеонаблюдение и охрана. По утрам не нужно чистить машину от снега — она стоит в чистом подземном паркинге. Благодаря удобной дорожной развязке въезд и выезд не займут много времени. Комфорт-Мы позаботились о том, чтобы в вашей квартире было больше пространства для вас. Храните тяжелую коляску, велосипед или самокат в удобном помещении, созданном специально для этих целей. Найдите ваш баланс в Даблхаус ''1:1''! Выберите планировку из 376 в
До центра ~ 20 мин
Приблизительное время на общественном транспорте до площадь 1905 года (Центр) – 20 мин
76 м2
17 / 30 этаж
Кирпич - монолит
  • Показать контакты
  • Добавить в избранное
76 м2
17 / 30 этаж
Кирпич - монолит
14 822 100 
193 500 /м2
Новостройка,
IV-2025
1/6
2-к, Огнеупорщиков, 5б Показать на карте
Верхняя Пышма, Жилой комплекс «Есенин»
ЖК Есенин. 1 этап строительства (1-5 подъезды, паркинг)Кирпичные стены, железобетонный каркас! Доступный комфорт!Архитектурная концепция —удобная и продуманная жизнь! Улучшенные планировки, большой просторный двухуровневый паркинг, кладовые!Сдержанные тона фасадов и единый стиль комплекса задают атмосферу комфорта и спокойствия. Сам дом будет 13-15-16 этажным Г-образной формы с семью секциями.Большой центральный вход с отдельным лифтом на 3 остановки!Просторные колясочные по 30 м2 в каждой секции! и велосипеды в них тоже можно хранить.Закрытый двор, видеонаблюдение!В доме есть подземный паркинг на 211 мест и 69 кладовых. Здесь точно тепло и безопасно!Современный подземно-наземный паркинг с остановкой лифтов на каждом уровне.Все квартиры сдаются с отделкой под чистовую.
55 м2
9 / 16 этаж
Кирпич - монолит
  • Показать контакты
  • Добавить в избранное
55 м2
9 / 16 этаж
Кирпич - монолит
7 587 440 
136 000 /м2
Новостройка,
IV-2027
1/6
2-к, Огнеупорщиков, 5б Показать на карте
Верхняя Пышма, Жилой комплекс «Есенин»
ЖК Есенин. 1 этап строительства (1-5 подъезды, паркинг)Кирпичные стены, железобетонный каркас! Доступный комфорт!Архитектурная концепция —удобная и продуманная жизнь! Улучшенные планировки, большой просторный двухуровневый паркинг, кладовые!Сдержанные тона фасадов и единый стиль комплекса задают атмосферу комфорта и спокойствия. Сам дом будет 13-15-16 этажным Г-образной формы с семью секциями.Большой центральный вход с отдельным лифтом на 3 остановки!Просторные колясочные по 30 м2 в каждой секции! и велосипеды в них тоже можно хранить.Закрытый двор, видеонаблюдение!В доме есть подземный паркинг на 211 мест и 69 кладовых. Здесь точно тепло и безопасно!Современный подземно-наземный паркинг с остановкой лифтов на каждом уровне.Все квартиры сдаются с отделкой под чистовую.
55 м2
6 / 16 этаж
Кирпич - монолит
  • Показать контакты
  • Добавить в избранное
55 м2
6 / 16 этаж
Кирпич - монолит
7 587 440 
136 000 /м2
Новостройка,
IV-2027
1/6
2-к, Огнеупорщиков, 5б Показать на карте
Верхняя Пышма, Жилой комплекс «Есенин»
ЖК Есенин. 1 этап строительства (1-5 подъезды, паркинг)Кирпичные стены, железобетонный каркас! Доступный комфорт!Архитектурная концепция —удобная и продуманная жизнь! Улучшенные планировки, большой просторный двухуровневый паркинг, кладовые!Сдержанные тона фасадов и единый стиль комплекса задают атмосферу комфорта и спокойствия. Сам дом будет 13-15-16 этажным Г-образной формы с семью секциями.Большой центральный вход с отдельным лифтом на 3 остановки!Просторные колясочные по 30 м2 в каждой секции! и велосипеды в них тоже можно хранить.Закрытый двор, видеонаблюдение!В доме есть подземный паркинг на 211 мест и 69 кладовых. Здесь точно тепло и безопасно!Современный подземно-наземный паркинг с остановкой лифтов на каждом уровне.Все квартиры сдаются с отделкой под чистовую.
56 м2
3 / 16 этаж
Кирпич - монолит
  • Показать контакты
  • Добавить в избранное
56 м2
3 / 16 этаж
Кирпич - монолит
7 508 020 
134 000 /м2
Новостройка,
IV-2027
1/6
2-к, Космонавтов проспект, 108д/7 стр. Показать на карте
Орджоникидзевский район, Эльмаш
Екатеринбург, Veer Park (Веер Парк)
ЖК VEЕR РАRК новый жилoй квартал напpотив TРЦ Bеeр Мoлл в микрopaйoнe Эльмaш, возведенный спeциaльнo для молодых и активных, ''для ярких впечатлений''! О ЖКЖилой комплекс VЕER PARK пpедcтавляет сoбoй 11 многoэтажных кирпично-мoнoлитных жилыx дoмов комфоpт-клaccа. Вблизи oт ЖK нaxoдятся два пaрка: ''Пышминcкие озерки'', которые примыкают прямо к комплексу, и ''Калиновский лесопарк''. Во дворе домов шумных машин совсем нет. Вместо этого застройщик предоставил большую территорию под игровые площадки для детей всех возрастов, площадки для занятия спортом с тренажерами, площадки для отдыха и работы, а также пешеходные дорожки. Приятно, что в жилом комплексе абсолютно каждые дома имеют свою уникальную стилистику оформления внутренних помещений. Фойе, холлы, подъезды в каждом доме уникальны по-своему. Складывается ощущение, что каждый раз заходишь всё в новый и новый комплекс. Установлены современные лифты.ГДЕ НАХОДИТСЯКвартал расположен в динамично развивающемся микрорайоне Эльмаш, в Орджоникидзевском районе Екатеринбурга. Комплекс ограничен улицами проспект Космонавтов — Шефская. Новостройка находится в непосредственной близости с транспортными развязками. В двух минутах находится остановка общественного транспорта, в пешей доступности — станция метро, кроме того, рядом проходит трамвайная линия ''Екатеринбург Верхняя Пышма''. Плюсом является близость к кольцевой дороге и выезду на ЕКАД, что обеспечивает мобильность между Среднеуральском и Березовским и Верхней Пышмой.ПЛАНИРОВОЧНЫЕ РЕШЕНИЯ И ОТДЕЛКАВ продаже имеются студии, 1-, 2- и 3-х комнатные квартиры с площадью от 26 до 81 метров квадратных и большим выбором планировок на любой вкус. Кухня-гостиная, большие коридоры, гардеробные и многие другие планировки ждут вас в ЖК VЕЕR РАRК. Квартиры сдаются сразу с качественной чистовой отделкой, чтобы новые собственники смогли сразу же переехать. В квартирах уже имеются:— Обои на стенах,— Стяжка пола,— Разводка электроснабжения,— Межкомнатные двери из качественных материалов,— Входная сейф дверь,— Стеклопакеты на окнах,— Остеклённая лоджия,— Набор качественной сантехники.БЕЗОПАСНОСТЬВо дворе машин нет, вместо этого застройщик решил сделать большую безопасную территорию для жителей комплекса и их детей. Также хотелось бы отметить, что территория ЖК полностью закрыта от посторонних.ПАРКИНГВокруг комплекса предусмотрены открытые общественные стоянки. Застройщиком запланировано строительство подземного и многоуровневого наземного паркинга.ИНФРАСТРУКТУРАНа первых этажах жилого комплекса располагаются коммерческие помещения с продуктовыми магазинами, аптеками и салонами. На территории района сосредоточена вся необходимая инфраструктура:— ТЦ ''VЕЕR МАLL'' напротив ЖК,— Кафе ''Вкусно и точка'', ''КFС'',— Супермаркеты: ''СИМА-Ленд'', ''Меtrо'', ''Магнит'' в шаговой доступности,— Аптеки: ''Алоэ'', ''Фармленд'', ''Ранкая'',— Больница ''Шанс''.От нового квартала до муниципального детского сада 529 всего 600 метров, вскоре рядом с жилым комплексом появится и новый детс
До центра ~ 55 мин
Приблизительное время на общественном транспорте до площадь 1905 года (Центр) – 55 мин
60 м2
17 / 25 этаж
Монолит
  • Показать контакты
  • Добавить в избранное
60 м2
17 / 25 этаж
Монолит
9 828 900 
163 000 /м2
Новостройка,
дом сдан
1/34
2-к, Татищева, 124/2 стр. Показать на карте
Верх-Исетский район, ВИЗ
Екатеринбург, Жилой комплекс «Белый парус»
Продаётся 2-комнатная квартира в строящемся доме (Дом 1 секции 1-5), срок сдачи: II-кв. 2026, общей площадью 59.3 кв.м., на 11 этаже. Дом комфорт-класса на песчаном берегу Верх-Исетского пруда. Новый жилой комплекс комфорт-класса ''Белый Парус'' расположен на первой береговой линии . Верх-Исетского пруда в тихом месте с песчаным пляжем и буйной растительностью вдали от душных городских улиц. Для такого уникального дома не случайно архитектором стал один из признанных мастеров Тимур Абдуллаев - в недавнем прошлом главный архитектор Екатеринбурга, основатель архитектурной группы Информ и создатель проекта ''Школа главного архитектора''. Начало целого квартала на берегу Жилой комплекс ''Белый парус'' стал началом строительства целого квартала в прибрежной зоне Верх-Исетского пруда. Здесь будет создана уникальная среда как для горожан, так и жителей квартала, разработанная в гармонии с окружающей природой. Вечерами солнце, заходящее за горизонт, навевает ощущение, будто вы живете на морском побережье, а не в современном мегаполисе. Здесь появится уникальное и комфортное место для отдыха, общения, спорта, танцев и даже работы. В ближайшем будущем на территории появятся благоустроенная набережная, объекты городской инфраструктуры и атрибуты загородных и пляжных развлечений. Дом, созданный в гармонии с окружающей средой Жилой комплекс находится всего в 15 минутах от центра Екатеринбурга, а сам район отличается развитой инфраструктурой. Рядом все нужное: остановки общественного транспорта, сетевые магазины, кафе и рестораны, медицинские услуги и велнес, а также детские сады и школы. При желании за покупками можно отправиться в центральные гипермаркеты и торгово-развлекательные комплексы, такие как ''Радуга парк'', ''Алатырь'' или ''Гринвич''. В ЖК ''Белый парус'' каждый найдет то, ради чего захочется остаться: из окон открывается прекрасный вид на Верх-Исетский пруд и на город, которым приятно любоваться по утрам, сидя с чашечкой кофе. А любителей активного образа жизни ждет простор для занятий спортом или неторопливых вечерних прогулок у воды - прямо с территории дома для жителей будет оборудован собственный выход на пирс. Минималистичный дизайн Сам дом будет выполнен в минималистичном дизайне, который подчеркнет статус жилья комфорт-класса: каждая деталь дома продумана до мелочей, а его стиль подчеркивают изящные геометрические линии, современные архитектурные формы и сдержанные цвета. Двор, где каждый найдет дело по душе Отдельного внимания заслуживает дворовая территория будущего комплекса, ведь досуг жителей - это одна из самых значимых отличительных особенностей жилья комфорт-класса. В ЖК ''Белый Парус'' будет создан благоустроенный двор с пешеходными и велосипедными дорожками, местами для отдыха и занятий спортом. В дворе расположатся площадки с самыми современными игровыми комплексами для детей разных возрастов, спроектированными для всестороннего физического и интеллектуального развития. Для взрослых жителей запроектированы комфортные зоны от
До центра ~ 35 мин
Приблизительное время на общественном транспорте до площадь 1905 года (Центр) – 35 мин
59 м2
11 / 17 этаж
Кирпич - монолит
  • Показать контакты
  • Добавить в избранное
59 м2
11 / 17 этаж
Кирпич - монолит
11 884 371 
200 411 /м2
Новостройка,
II-2026
1/44
2-к, Тенистая, гп 1в Показать на карте
Верх-Исетский район, Широкая речка
Екатеринбург, Жилой комплекс «На Тенистой»
Продаётся 2-комнатная квартира в строящемся доме (Дом 1В), срок сдачи: III-кв. 2026, общей площадью 49.87 кв.м., на 3 этаже. с Квартал расположен между двумя микрорайонами - Академический и Широкая речка на пересечении улиц Тенистая-Краснолесья-Соболева. Вы сможете пользоваться преимуществами сразу двух районов! 30 минут до центра города на машине, 9 минут до Объездной дороги, если хочется выехать на природу. В шаговой доступности есть несколько школ, детских садов и спортивных секций. А еще один детский сад на 350 мест уже построен на территории самого квартала. Большой двор, разделен на рекреационные зоны. Есть площадки для малышей и подростков с безопасным покрытием, зоны ворк-аута для предпочитающих здоровый образ жизни, прогулочные дорожки для бесед с друзьями или соседями. Безопасность - важное преимущество эко-квартала. Вход на территорию осуществляется с помощью Face ID или через мобильное приложение. Входные группы оформлены в соответствии с архитектурной концепцией всего квартала, ведь всегда приятно заходить в красиво оформленный подъезд. На всех этажах предусмотрена навигационная система, чтобы ваши гости точно не заблудились! В третьей очереди квартала ''На Тенистой'' есть несколько уникальных планировок, в том числе с мастер-спальнями, с открытыми балконами, с панорамным остеклением лоджии. А чтобы вы точно подобрали то, что по душе, в продаже представлены все виды комнатности - от студий до трехкомнатных. Мы за быстрый переезд, поэтому все квартиры сдаются с отделкой ''под ключ'': поклеены обои под покраску, постелен ламинат, установлены окна, обустроен санузел, поставлены счетчики, проведена разводка. До встречи на Тенистой. Здесь всегда хорошо! Окончание строительства: III квартал 2026г.
До центра ~ 45 мин
Приблизительное время на общественном транспорте до площадь 1905 года (Центр) – 45 мин
49 м2
3 / 22 этаж
Кирпич - монолит
  • Показать контакты
  • Добавить в избранное
49 м2
3 / 22 этаж
Кирпич - монолит
7 062 839 
141 625 /м2
Новостройка,
III-2026
1/3
2-к, 1-й Пятилетки а/я, 1/1 стр. Показать на карте
Уралмаш, 7 мин
Екатеринбург, Жилой комплекс «Голос Заря»
Жилой квартал ''Голос Заря'' расположен на пересечении проспекта Космонавтов и улицы Машиностроителей, всего в трех минутах от станции метро ''Уралмаш''. Рядом есть вся необходимая социальная инфраструктура: вузы, колледжи, школы и детские сады, детские и взрослые поликлиники, и спортивные комплексы.Квартал состоит из 12 секций с разной этажностью — от 5 до 30 этажей. Все дома имеют монолитно-каркасный тип строительства и одну секцию, что позволяет создать гармоничное пространство для жителей. В каждой секции - сквозные входные группы с выходом на улицу и во двор, доступ к которым возможен только для жителей по индивидуальному ключу. Удобные планировочные решения дают возможность реализовать любые дизайнерские идеи: квартиры имеют потолки высотой от 2,83 до 3,05 метров, просторные кухни-гостиные, а также террасы и двухуровневые квартиры.В каждой квартире предусмотрена чистовая отделка, позволяющая вам сразу приступить к обустройству своего нового дома без лишних забот и расходов.Инженерные системы квартала разработаны с применением современных технологий. Горизонтальная разводка отопления и водоснабжения способствует равномерному распределению ресурсов, а механическая вытяжная вентиляция обеспечивает постоянный приток свежего воздуха, создавая идеальные условия для жизни.Высокий уровень сервиса и безопасности поддерживаются собственной управляющей компанией и единым центром мониторинга. Остались вопросы? Свяжитесь с нами и узнайте больше о жилом квартале ''Голос Заря''
51 м2
23 / 30 этаж
Кирпич - монолит
  • Показать контакты
  • Добавить в избранное
51 м2
23 / 30 этаж
Кирпич - монолит
9 611 800 
187 000 /м2
Новостройка,
III-2027
1/6
2-к, Студенческая, 1д стр. Показать на карте
Кировский район, Втузгородок
Екатеринбург, Жилой комплекс «Теплые кварталы»
Квартира в семейном жилом комплексе комфорт-класса ''Тёплые кварталы'' на границе Пионерского микрорайона и Втузгородка в Екатеринбурге. В данном районе сосредоточено большое количество знаменитых вузов, поликлиники, культурно-спортивные центры. Детский сад находится во дворе второго дома жилого комплекса. Дома переменной этажности в едином стиле образуют современный эстетичный квартал, на территории которого будет безопасно и интересно. Двор закрыт от машин и посторонних - доступ только для жителей по электронному ключу, видеонаблюдение 24/7. Дизайн двора выполнен в экостиле - из натуральных материалов. Качели, горки и скамейки выполнены в природных оттенках.Во дворе дети смогут придумывать всевозможные сценарии игр. Для родителей есть тихая лаундж-зона и места для занятий спортом. Озеленение сделает двор всесезонным - будут высажены пихты, яблони, можжевельник и гортензии.Для домов ЖК ''Тёплые кварталы'' предусмотрена отдельная котельная. Это позволит экономить на коммунальных платежах и пользоваться горячей водой без перебоев круглый год.Кирпичный дом отличается высокой энергоэффективностью и долговечностью, а также широкими подоконниками, которые не встретить в монолитных домах.Предусмотрен подземный паркинг и кладовые. Срок сдачи 3 квартал 2026 г. этаж - 10количество комнат - 2номер помещения - 193площадь квартиры - 44,22 кв.мвысота потолка - 2,75 мКвартира разработана с акцентом на удобство и практичность. Спальня создает атмосферу для спокойного отдыха, а ванная комната оснащена всеми необходимыми удобствами. Благодаря большим окнам все помещения хорошо освещены и идеально подходят для расстановки мебели. Планировка кухни позволяет эффективно зонировать пространство.Приобрести квартиру можно с предчистовой отделкой или с готовым ремонтом.
До центра ~ 40 мин
Приблизительное время на общественном транспорте до площадь 1905 года (Центр) – 40 мин
44 м2
10 / 25 этаж
Кирпич - монолит
  • Показать контакты
  • Добавить в избранное
44 м2
10 / 25 этаж
Кирпич - монолит
9 410 000 
212 800 /м2
Новостройка,
III-2026
1/29
2-к квартира Показать на карте
Чкаловский район, Уктус
Екатеринбург
СКМ Ривер жилой комплекс комфорт-класса на берегу Нижне-Исетского пруда. Из окон открываются живописные виды на водоем, горы и лес. В пяти минутах ходьбы находится парк отдыха с благоустроенной набережной. До центра можно доехать за 20 минут на личном или общественном транспорте.Комплекс состоит из двух домов переменной этажности, объединенные общим двором-парком с многоуровневым озеленением. На первом этаже располагается галерея магазинов, где жители смогут найти все необходимое. Приватная территория, двор без машин и система видеонаблюдения делают дом безопасным и комфортным. Пространство двора разделено на зоны: для малышей, для подвижных игр детей постарше, workout-площадки для занятий спортом, а также прогулочные дорожки и уютные уголки для спокойного отдыха.Прозрачные входные группы расположены на уровне земли, домофон находится в теплом тамбуре. Дизайнерский холл оборудован мягкой зоной для ожидания такси, колясочными комнатами, гостевыми санузлами и лапомойками.Разнообразные планировочные решения: от квартир с одной спальней для молодых пар до вариантов с тремя спальнями для семей с несколькими детьми. Для тех, кто хочет сделать дизайн-проект самостоятельно, мы предлагаем квартиры в предчистовом варианте, также можно заказать чистовую отделку.Все подробности о проекте и условиях покупки в отделе продаж СКМ Девелопмент.
57 м2
19 / 23 этаж
Кирпич - монолит
  • Показать контакты
  • Добавить в избранное
57 м2
19 / 23 этаж
Кирпич - монолит
7 810 000 
134 795 /м2
Новостройка,
I-2027
1/27
2-к, Золотистый бульвар, 19 стр. Показать на карте
Чкаловский район, Солнечный
Екатеринбург, Жилой район Солнечный
Продается квартира 184, по адресу Свердловская обл., г. Екатеринбург, Чкаловский район, корпус Солнечный, блок 5.4, корпус 1 в Солнечный на 3 этаже, с площадью 67.06 м2.
67 м2
3 / 8 этаж
Монолит
  • Показать контакты
  • Добавить в избранное
67 м2
3 / 8 этаж
Монолит
10 061 416 
150 036 /м2
Новостройка,
III-2025
1/27
2-к, Чемпионов, 17 стр. Показать на карте
Чкаловский район, Солнечный
Екатеринбург, Жилой район Солнечный
Продается квартира 626, по адресу Свердловская область, г. Екатеринбург, ул. Чемпионов, корпус Солнечный, блок 11.1 в Солнечный на 5 этаже, с площадью 55.4 м2.
55 м2
5 / 15 этаж
Монолит
  • Показать контакты
  • Добавить в избранное
55 м2
5 / 15 этаж
Монолит
7 438 751 
134 273 /м2
Новостройка,
IV-2027
1/27
2-к, Лучистая, 22 стр. Показать на карте
Чкаловский район, Солнечный
Екатеринбург, Жилой район Солнечный
Продается квартира 145, по адресу Свердловская область, г. Екатеринбург, корпус Солнечный, блок 6.4 в Солнечный на 5 этаже, с площадью 62.9 м2.
62 м2
5 / 8 этаж
Монолит
  • Показать контакты
  • Добавить в избранное
62 м2
5 / 8 этаж
Монолит
9 128 097 
145 121 /м2
Новостройка,
IV-2026
1/27
2-к, Золотистый бульвар, 16 стр. Показать на карте
Чкаловский район, Солнечный
Екатеринбург, Жилой район Солнечный
Продается квартира 460, по адресу Свердловская обл., г. Екатеринбург, Чкаловский район, корпус Солнечный, корпус 6.2 в Солнечный на 9 этаже, с площадью 62.9 м2.
62 м2
9 / 15 этаж
Монолит
  • Показать контакты
  • Добавить в избранное
62 м2
9 / 15 этаж
Монолит
9 487 692 
150 838 /м2
Новостройка,
I-2026
1/27
2-к, Золотистый бульвар, 16 стр. Показать на карте
Чкаловский район, Солнечный
Екатеринбург, Жилой район Солнечный
Продается квартира 172, по адресу Свердловская обл., г. Екатеринбург, Чкаловский район, корпус Солнечный, корпус 6.2 в Солнечный на 6 этаже, с площадью 65.2 м2.
65 м2
6 / 15 этаж
Монолит
  • Показать контакты
  • Добавить в избранное
65 м2
6 / 15 этаж
Монолит
9 707 417 
148 887 /м2
Новостройка,
I-2026
1/27
2-к, Золотистый бульвар, 16 стр. Показать на карте
Чкаловский район, Солнечный
Екатеринбург, Жилой район Солнечный
Продается квартира 204, по адресу Свердловская обл., г. Екатеринбург, Чкаловский район, корпус Солнечный, корпус 6.2 в Солнечный на 10 этаже, с площадью 57.35 м2.
57 м2
10 / 15 этаж
Монолит
  • Показать контакты
  • Добавить в избранное
57 м2
10 / 15 этаж
Монолит
9 370 825 
163 397 /м2
Новостройка,
I-2026
  • В начало
  • 174
  • 175
  • 176
  • 177
  • 178
  • Следующая
Распечатать

Вместе с этим также ищут:

Продажа квартир в Каменске-Уральском Продажа однокомнатных квартир в Каменске-Уральском Продажа комнат в Каменске-Уральском Продажа гаражей в Каменске-Уральском Продажа вторички - квартиры в Каменске-Уральском Квартиры в новостройках в Каменске-Уральском

🏠 Как купить двухкомнатную квартиру в Свердловской области на N1?

  • ✔ В поисках объявления о продаже или покупке квартир в Свердловской области?
  • ✔ На N1 размещены 11,20 тыс квартир
  • ✔ Чтобы купить или продать недвижимость, воспользуйтесь формой поиска, фильтрами или быстрыми ссылками.

💸 Сколько стоит двухкомнатная квартира в Свердловской области?

  • 🟢 Средняя цена продажи двухкомнатных квартир - 9,83 млн ₽
  • 🟢 Минимальная стоимость за 1 м2: 168,19 тыс ₽

📚 Какая площадь двухкомнатных квартир?

  • Наибольшая площадь: 174 м²
  • Минимальная площадь: 28 м²