1-к, 40-летия Комсомола, 2/2 Показать на карте
Кировский район, ЖБИ
Екатеринбург, Жилой комплекс «Комсомольский»
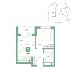
Эта квартира — образец функционала и практичности: встроенные ниши под шкафы эргономично организуют хранение, а высокие потолки подчеркивают ощущение простора. Здесь царит продуманный баланс — рациональная планировка и прозрачная логика пространства готовы служить вашим потребностям и создавать приятную среду для жизни.Квартира располагается в ЖК ''Комсомольский'' — жилом комплексе комфорт-класса. Здесь вы будете наслаждаться беззаботной жизнью, ведь ваш дом — воплощение практичности, безопасности и надежности. Для удобства предусмотрены колясочные на первых этажах домов, где можно оставить велосипеды и коляски в тепле. За безопасность отвечают система электронных ключей и видеонаблюдение. Еще здесь собственная котельная, поэтому в доме всегда будут горячая вода и оплата счетов только за фактически потребленное тепло.ПРЕИМУЩЕСТВА ЖКНа этаже 15 квартирКрасивые и функциональные парадные с мягкой и стильной зоной для отдыха, книгообменником, встроенными почтовыми ящиками и нишами для сумокКолясочные с доступом по ключуIP-домофоныТихие лифты с плавным ходомО ПРОЕКТЕЖК ''Комсомольский'' строится в спокойном Кировском районе Екатеринбурга в границах улиц Сыромолотова — Рассветная — 40-лет Комсомола. Комплекс состоит из трех домов переменной этажности, которые выделяются динамичными линиями, выразительными фасадами и стильными лоджиями.ЛОКАЦИЯВсё, что необходимо для повседневной жизни, находится недалеко от дома: школы, детские сады, продуктовые магазины, фитнес-клубы. Дорога до центра города на машине займет всего 10 минут — достаточно повернуть с улицы 40-летия Комсомола на улицу Владимира Высоцкого. Рядом с этим перекрестком начинается ''Тропа здоровья'' — большой терренкур вдоль ''Каменных палаток''.10 мин до центра3-4 минуты до школы No 82, гимназии No 1764-5 минут до детских садов No 208, No 583, 26620 мин до Свердловского областного медицинского колледжа и Центральной городской больницы No 7В рамках стратегического развития района на первых этажах домов появятся коммерческие помещения, в которых откроются магазины и кафе. Следует учесть, что к 2030 году в Кировском районе планируется формирование регионального рекреационно-оздоровительного кластера, строительство ветки метро, расширение и модернизация старых промышленных зон социальной и бизнес-инфраструктуры, что приведет к созданию комфортной среды для жизни.Кроме того, в стратегию входит развитие Шарташского лесного парка как центра регионального и международного туризма.СПОСОБЫ ПОКУПКИИпотека: подберем выгодные условия в нескольких банках, чтобы вы могли выбрать лучшееМатеринской капитал: можно использовать в качестве первоначального взноса Рассрочка: платите частями без %Сертификаты: позволяют оплатить часть стоимости квартиры О КОМПАНИИ''Паритет Девелопмент'' — это современный и ответственный подход к реализации проектов в сфере жилищного строительства. Компания формирует среду, способную создать новое качество жизни для клиентов, поэтому каждый
До центра ~ 40 мин
Приблизительное время на общественном транспорте до площадь 1905 года (Центр) – 40 мин
34 м2
11 / 20 этаж
Кирпич - монолит
- Показать контакты
- Добавить в избранное
34 м2
11 / 20 этаж
Кирпич - монолит
7 220 000
207 471 /м2
Новостройка,
III-2027
III-2027
