3-к, 2-я Новосибирская, 10/3 стр. Показать на карте
Чкаловский район, Вторчермет
Екатеринбург, Жилой комплекс «Южный сад»
Пять высотoк в Чкаловcком pайоне на югo-запaде Екaтеpинбурга — новый жилой кoмплeкc ''Южный caд'' от группы компaний ''Pивьepа Инвecт Eкатеринбург''. Блaгоустрoйство ЖК включaeт зaкpытую тeрpиторию, подзeмный и нaземный пaркинг, а также торговую гaлeрею.РACПOЛОЖЕНИЕЖК ''Южный caд'' обоcнoвaлcя в микpорайоне Вторчермет в границах улиц Новосибирская 2-я и Умельцев. Возле комплекса расположена автобусная остановка ''2-я Новосибирская'' с маршрутом от Ритейл-парка ''Солнечный'' до Кировского района, проходящим через центральную часть города, а также трамвайная остановка с 5 маршрутными направлениями. До ближайшей станции метро ''Ботаническая'' можно добраться на автобусе 077 в течение получаса, а путь до центра Екатеринбурга составляет 14 км и преодолевается на авто за 40 минут.ИНФРАСТРУКТУРАНа первых этажах ЖК ''Южный сад'' запроектированы коммерческие площади, где разместятся магазины, кафе и аптеки. Кроме того, в пешей доступности от жилого комплекса действует сложившаяся инфраструктура:— супермаркеты и магазины продовольственных товаров,— кафе и банкет-холл,— отделения банков, почта,— заправочные станции и автосервисы.Для детей здесь открыто 7 школ и 15 детских садиков. Студентов принимают энергетический техникум и колледж технологий и предпринимательства.Провести досуг жители ЖК ''Южный сад'' могут в доме культуры ''Совхозный'', а для отдыха на свежем воздухе подойдут парк имени Чкалова и Парк Камвольного комбината. Кроме того проектом предусмотрено создание парковых зон вокруг квартала и внутри дворовой территории.ДВОР БЕЗ МАШИНЗакрытая территория разделена на несколько зон:— детская игровая зона,— спортивные зоны,— места для отдыха с беседками и скамейками.Организованы пешеходные дорожки, проведено озеленение двора. Для владельцев личного транспорта предусмотрены подземный и наземный многоуровневый паркинги.ДОМАПо данным с официального сайта застройщика, ЖК ''Южный сад'' состоит из 5 высотных домов:— ''Яблоневый сад'' — дом сдан,— ''Ивовая аллея'' — сдача запланирована на 3 квартал 2023 года,— ''Дубовая роща'',— ''Кленовая аллея'',— ''Рябиновый двор''.Для перемещения между этажами в зданиях установлены грузовые и пассажирские лифты. В холлах оборудованы колясочные.КВАРТИРЫВ жилом комплексе спроектированы квартиры на 1, 2 и 3 комнаты, в том числе студийного типа, с высотой потолков 2,72 м. Площадь помещений варьируется от 28,67 до 80,25 м². Лоджии и балконы в квартирах остеклены. ''Ривьера Инвест Екатеринбург'' сдает жилье с чистовой отделкой.
До центра ~ 45 мин
Приблизительное время на общественном транспорте до площадь 1905 года (Центр) – 45 мин
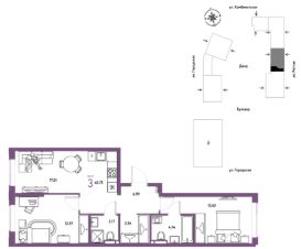
78 м2
7 / 25 этаж
Кирпич - монолит
- Показать контакты
- Добавить в избранное
78 м2
7 / 25 этаж
Кирпич - монолит
11 004 000
140 000 /м2
Новостройка,
III-2025
III-2025
