1-к, Социалистическая, 7 Показать на карте
Орджоникидзевский район, Уралмаш
Екатеринбург
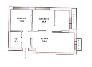
Однокомнатная квартира в центре Орджоникидзевского района, микрорайон Уралмаш, недалеко от станции метро Уралмаш. Дом блочный 1963 года постройки, 5 этаж в 5-ти этажном доме. Отличный вариант, как для проживания, так и для сдачи в аренду. Квартира общей площадью 31 кв.м., жилая 19 кв.м, кухня 6 кв.м. Квартира с балконом. Сан.узел раздельный. В квартире остаётся мебель, стиральная машина. Спокойные, аккуратные и порядочные соседи в подъезде. В подъезде хорошее состояние, выполнен ремонт. Дом расположен во дворе, т.е. шум от машин вас не будет беспокоить. Во дворе много деревьев, кустов, что спасет вас от пыли при открытых окнах и прогуляться вечером приятно. Отличная локация дома: до станции метро Уралмаш 15 минут пешком, по прописке относится к 144 гимназии, также рядом Средняя школа 68 с углубленным изучением отдельных предметов, несколько детских садов, в шаговой доступности остановки общественного транспорта: автобус 73, троллейбусы 29,38, различные магазины, детский стадион, летний парк, детское медицинское учреждение. До площади Первой пятилетки 5-7 минут пешком.Один взрослый собственник. Мат.капитал не использовался, долгов по оплате коммунальных услуг нет. Обременений нет. Продавец не является банкротом и не планируют им становится. Звоните, приезжайте на просмотр. Если на покупку квартиры не хватает средств, я помогу Вам получить положительное решение на ипотечный кредит. Если у Вас обмен и своя недвижимость (дом, участок, квартира, комната и т.д.) еще не продана, расскажите мне, возможно, сейчас на нее есть покупатель, если нет, то я помогу Вам его найти. Если у Вас возникли дополнительные вопросы, то обращайтесь буду
До центра ~ 45 мин
Приблизительное время на общественном транспорте до площадь 1905 года (Центр) – 45 мин
31 м2
5 / 5 этаж
Бетонные блоки
- Показать контакты
- Добавить в избранное
31 м2
5 / 5 этаж
Бетонные блоки
3 400 000
109 677 /м2
