2-к, Мира, 47/7 Показать на карте
Кировский район, Втузгородок
Екатеринбург, Проспект Мира. Компаунд
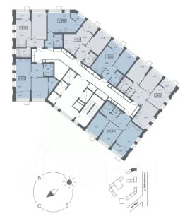
Компаунд ''Проспект Мира'' флагманский проект компании ''Первостроитель'', финалист премии Urban Awards, входит в ТОП 5 жилых комплексов России по версии Единого ресурса застройщика.Это закрытый комплекс с развитой инфраструктурой, фонтаном, зонами отдыха, детскими площадками, спортивными зонами и двухуровневым паркингом. Дом по адресу ул. Мира 47/7 состоит из двух секций, корпус которых развернут внутрь дворового пространства компаунда. В доме просторные холлы с зонами ожидания и колясочные.На территории компаунда расположен мультифункциональный центр, в котором расположены собственные бизнесы застройщика: фитнес-клуб с 24-х метровым бассейном и СПА зоной, ресторанный комплекс, бильярдный клуб и отель.Особое внимание в проекте уделено внутреннему дворовому пространству: во дворе выполнен ландшафтный дизайн с оригинальными клумбами, деревьями, кустарниками и вечерней подсветкой. Безопасность домов обеспечивают камеры наблюдения, расположенные по периметру зданий, в местах общего пользования, на этажах и лифтах.Квартиры отличаются продуманными планировками (от 30,6 до 110 м²) и высокими потолками (от 2,75 до 3,5 м). Дома имеют класс энергоэффективности А и целый ряд энергоэффективных решений:повышенную теплоизоляцию наружных стен,специальные оконные конструкции,сохраняющие тепло зимой и не нагревающие комнаты летом,уникальную для многоквартирных домов индивидуальную систему приточно-вытяжной вентиляции с рекуперацией воздуха, что даёт постоянное обновление воздуха
До центра ~ 25 мин
Приблизительное время на общественном транспорте до площадь 1905 года (Центр) – 25 мин
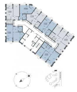
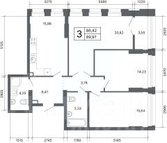
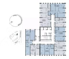
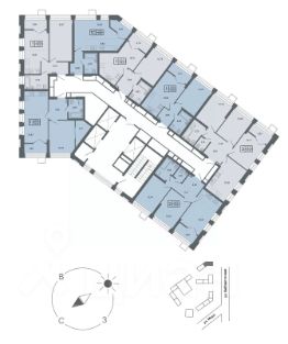
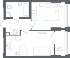
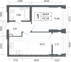
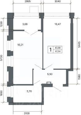
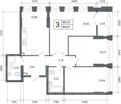
75 м2
15 / 24 этаж
Кирпич - монолит
- Показать контакты
- Добавить в избранное
75 м2
15 / 24 этаж
Кирпич - монолит
16 911 000
224 284 /м2
Новостройка,
дом сдан
дом сдан
