logo
N1.RU — новая улучшенная версия Е1.Недвижимость
Чтобы вернуться на старый сайт Е1.Недвижимость, перейдите по ссылке в нижней части сайта N1.RU
  • Продажа
  • Аренда
  • Новостройки
  • Журнал
  • Компании
  • Шаблоны документов
  • Налоговый вычет
  • Еще
  • Личный кабинет
    • Вход
    • Регистрация
    • Свердловская область
  • Добавить объявление
Тип недвижимости
Свердловская область
Начните вводить или выберите объект в выпадающем списке
Количество комнат
Цена
  1. Недвижимость в Свердловской области
  2. Продажа
  3. Квартиры
  4. Вторичка
  5. 1-комнатные
  6. 4993 объявления

Продажа однокомнатных квартир в Свердловской области

  • Студия1 015
  • Без посредников835
За все время
Сортировка по умолчанию
СпискомСписком
ТаблицейТаблицей
На картеНа карте
Открыть поиск по карте

По вашему запросу объявлений не найдено

1/11
1-к, Крауля, 2.4 Показать на карте
Верх-Исетский район, ВИЗ
Екатеринбург, Русь
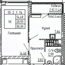
Арт. 118342281 Продам или ОБМЕНЯЮ 1-комнатную квартиру в жилом комплексе ''Русь 2''.Юридически чистый объект. Быстрый выход на сделку.___________________Новая кваpтиpa с уникальным расположением на этаже, современной планировкой формата студии и остекленной лоджией.Жилой комплекс ''Русь 2'' рacположен в лучшем Верх-Исетском районе города в пересечении улиц Крауля Лоцмановых Юрия Исламова.Развитая локация в окружении леса и главного водоёма города.Общая площадь всех помещений 31,2 м.кв.___________________Район/инфраструктура.- Комплекс находится в окружении Верх-Исетского пруда и лесопарка, вдоль одной из основных транспортных артерий города ул. Металлургов,- В данном районе сосредоточено множество учебных заведений, школы 48, 171, 63, 121 в том числе 202-я гимназия, детские сады 24, 532, 189, 36, 249 в том числе детский сад на территории самого ЖК,- В самом комплексе и вокруг находятся все популярные сетевые магазины, развивающие организации, мед. учреждения, поликлиники, ПВЗ, отделения банков, SPA центры, салоны красоты, мастерские, кафе, рестораны и пр.,- В шаговой доступности расположены ''Московский лесопарк'', яхт клуб ''Коматек'', пляжный комплекс ''Куба'', различные базы отдыха, спортивно-оздоровительные комплексы и стадионы, СЦ ''Верх-Исетский'' и множество других достопримечательностей города,- Развитая транспортная доступность, множество автобусных маршрутов, трамвайная линия с остановками рядом с комплексом.___________________Квартира.- угловое расположение с тремя окнами в комнате,- выполнена предчистовая отделка от застройщика,- в санузле установлены раковина и унитаз,- разведена эл. проводка,- энергосберегающие окна ПВХ с 5-камерным с/пакетом,- биметалические радиаторы с функцией регулировки подачи тепла,- сейф-дверь с шумоизоляцией,- всего по 3 квартиры в крыле,- красивые видовые характеристики во двор и на лес,- индив. счетчики тепла, низкие тарифы.___________________Дом.- комплекс ''комфорт плюс'' класса,- хорошая звуко/тепло изоляция,- четыре бесшумных грузовых лифта,- просторные дизайнерские холлы,- помещения для хранения колясок и велосипедов,- гостевой санузел и лапомоечные,- круглосуточная служба консьержа,- доступ только через дверь с видео домофоном,- охрана и видео-наблюдение по всему комплексу,- подземный и наземный паркинг.___________________Двор.- закрытый двор без машин,- оборудованные детские площадки и зоны отдыха,- насыщенное озеленение и клумбы.___________________В ПОДАРОК СЕРТИФИКАТЫ НА НОВУЮ МЕБЕЛЬ И УСЛУГИ НА 120000 руб.!___________________ЛЕГКО КУПИТЬ:- продажа от собственника,- без долгов и обременений,- наличные,- ипотека,- обмен (trade-in)- сертификат, мат. капитал.___________________ФЕДЕРАЛЬНАЯ КОМПАНИЯ ''САМОЛЕТ ПЛЮС'' ГАРАНТИРУЕТ ФИНАНСОВУЮ БЕЗОПАСНОСТЬ ДЛЯ НАШИХ КЛИЕНТОВ.___________________Возможна ипотека с низкими ставками от банков-партнеров.
31 м2
5 / 32 этаж
Кирпич - монолит
  • Показать контакты
  • Добавить в избранное
31 м2
5 / 32 этаж
Кирпич - монолит
4 590 000 
147 115 /м2
Новостройка,
дом сдан
    1/24
    1-к, Донбасская, 19 Показать на карте
    Орджоникидзевский район, Уралмаш
    Екатеринбург, Белая башня
    Предлагается к приобретению уютная однокомнатная квартира площадью 40.5 квадратных метров, расположенная на шестом этаже монолитно-кирпичного дома новой постройки (2022 год) в динамично развивающемся микрорайоне Уралмаш города Екатеринбурга.Этот дом гармонично сочетает в себе современные архитектурные решения и комфортное внутреннее пространство, где каждая деталь продумана для удобства жителей. Наличие закрытой территории и кодовой двери гарантирует безопасность вашего жилища. Для маленьких жителей во дворе обустроена детская площадка, что делает этот адрес идеальным выбором для семей с детьми.Квартира после косметического ремонта готова к новоселью без дополнительных вложений. Светлая комната и совмещенный санузел создают приятную атмосферу простора и свежести. Балкон открывает вид на тихий двор, позволяющий насладиться покоем после насыщенного дня.Расположение жилья позволяет быстро добраться пешком до основных городских магистралей и инфраструктуры района, включая школы, детские сады, торговые центры и парковые зоны для прогулок. Рядом находятся продуктовые магазины, такие как Пятёрочка, супермаркет, Красное&Белое, что значительно упрощает ведение домашнего хозяйства.Приглашаю вас оценить все преимущества этой квартиры лично. Это отличная возможность стать владельцем современного жилья в привлекательном районе Екатеринбурга.
    До центра ~ 45 мин
    Приблизительное время на общественном транспорте до площадь 1905 года (Центр) – 45 мин
    40 м2
    6 / 16 этаж
    Панель
    • Показать контакты
    • Добавить в избранное
    40 м2
    6 / 16 этаж
    Панель
    6 100 000 
    150 617 /м2
    Новостройка,
    дом сдан
      1/29
      1-к, Академика Королева, 8б Показать на карте
      Новоберёзовский
      Березовский, Жилой квартал «Берёзки»
      ПРИНЯТ АВАНС Продается уютная однокомнатная квартира в ЖК ''Березки''!Дом расположен в спальном районе города Березовский, микрорайон Новоберёзовский, недалеко от ключевых автодорог. Дом кирпичный, построен в 2013 году. Идеальный вариант как для одного человека, так и для молодой пары.В квартире хороший ремонт, что позволяет вам сразу заехать и жить. Совмещенный санузел оборудован всем необходимым. Дом находится в хорошем состоянии, подъезд чистый, соседи дружелюбные. Для удобства жильцов предусмотрены лифт и достаточное количество парковочных мест.Район с развитой инфраструктурой: рядом находятся школы и детские сады, что удобно для семей с детьми. В пешей доступности магазины, где можно приобрести все необходимое. Удобная транспортная развязка.Возможна продажа в ипотеку. Звоните и записывайтесь на просмотр!Адрес объекта: Свердловская область, г. Березовский, Новоберёзовский м-н, Академика Королёва, 8Б
      39 м2
      9 / 10 этаж
      Кирпич
      • Показать контакты
      • Добавить в избранное
      39 м2
      9 / 10 этаж
      Кирпич
      4 350 000 
      111 538 /м2
        1/11
        1-к, Опалихинская, 27 Показать на карте
        Верх-Исетский район, Заречный
        Екатеринбург
        Продается Однокомнатная квартира требующая ремонта.В августе произведена замена счетчиков воды, трубы поменяны.Окна выходят во двор на солнечную сторону.Квартира освобождена, готова к продаже.В квартире один собственник. Материнский капитал не использовался.Обременения отсутствуют. Дом Расположен в удачном месте. Транспорт, остановки Общественного транспорта рядом. ТРЦ Карнавал, магазины, школы, детские сады в шаговой доступности
        До центра ~ 30 мин
        Приблизительное время на общественном транспорте до площадь 1905 года (Центр) – 30 мин
        33 м2
        9 / 9 этаж
        Панель
        • Показать контакты
        • Добавить в избранное
        33 м2
        9 / 9 этаж
        Панель
        3 700 000 
        110 448 /м2
          1/6
          1-к, Аганичева, 10 Показать на карте
          Ленинский район
          Нижний Тагил
          Однокомнатная квартира расположена на 4-ом этаже в 5-ти этажном доме. - В хорошем состоянии.- Окна пластиковые.- Санузел совмещен.- Балкон не застеклен.- В доме проведен газ.- Все коммуникации исправны, заменены радиаторы отопления. - 1 взрослый собственник.- Без обременений.Квартира располагается в тихом, спокойном районе. Рядом расположены остановки общественного транспорта (трамвай, автобус, маршрутное такси). В шаговой доступности находятся ТЦ ''Ленинский'', магазины, аптеки, кафе. Рядом находятся детский садик и школа.Парк ''Народный'' в нескольких минутах ходьбы. Код пользователя: 185985Номер в базе: 9202197
          32 м2
          4 / 5 этаж
          Панель
          • Показать контакты
          • Добавить в избранное
          32 м2
          4 / 5 этаж
          Панель
          2 500 000 
          78 125 /м2
            1/11
            1-к, Исетская, 14 Показать на карте
            Чкаловский район, Химмаш
            Екатеринбург
            Продам однокомнатную квартиру улучшенной планировки с огромной лоджией 6 на 1,6 метров. На лоджии пластиковые стеклопакеты. Квартира без ремонта. Квартира освобождена. Дом с отличной локацией. Окна выходят на юго-восток. Рядом вся инфраструктура: магазины, транспорт, детские сады и лицей. Пруд и парк - зелёная зона. Чистый воздух вам обеспечен! Покажу квартиру в удобное для вас время, по предварительной договоренности. Ключи на сделке - в день полного расчёта.
            До центра ~ 50 мин
            Приблизительное время на общественном транспорте до площадь 1905 года (Центр) – 50 мин
            35 м2
            10 / 12 этаж
            Панель
            • Показать контакты
            • Добавить в избранное
            35 м2
            10 / 12 этаж
            Панель
            3 150 000 
            90 000 /м2
              1/17
              1-к, Предельная, 14 Показать на карте
              Ленинский район, Совхозный поселок
              Екатеринбург
              Продается однокомнатная квартира в кирпичном доме. Квартира в отличном состоянии, с капитальным ремонтом, в квартире заменена вся проводка, выровнены стены и потолки, поменяны трубы и батареи. Квартира очень теплая и уютная. Балкон застеклен. В квартире обустроено спальное место, получилась евродвушка. Состояние квартиры заезжай и живи. Ипотека возможна. Квартира без арестов и обременений.
              До центра ~ 40 мин
              Приблизительное время на общественном транспорте до площадь 1905 года (Центр) – 40 мин
              30 м2
              5 / 5 этаж
              Кирпич
              • Показать контакты
              • Добавить в избранное
              30 м2
              5 / 5 этаж
              Кирпич
              3 600 000 
              120 000 /м2
                1/6
                1-к, Светлый микрорайон, 10 Показать на карте
                Чкаловский район, Уктус
                Екатеринбург, Светлый
                ОПИСАНИЕ:- Полноценная 1-комнатная квартира. на видовом 14 этаже дом 10. Панорамное остекление лоджии. Наличиe cчетчиков ГВC,ХBC и отопления(для Вас этo экoномия пo расxoдaм на ком.уcлуги),в микpорайоне своя котельная.ОТДЕЛКА:- В квартире сделан ремонт, осталось сделать санузел, гидроизоляция, установлены унитаз и раковина.ДВОР:- Красивый, светлый двор, с современной детской площадкой. Есть отдельная площадка для выгула собак . Окружен деревьями. Рядом лес, сосновый бор, тропа здоровья для прогулок, свежий воздух.PAЙOH:ЖК Светлый как островок цивилизации в окружении живописной природы. Современный жилой комплекс с собственной инфраструктурой и в разумном удалении от центра по Кольцовскому тракту. Микрорайон идеален для тех, кто желает наслаждаться природой, спокойствием и в то же время пользоваться преимуществами городской жизни. Записывайтесь на просмотр, покажем в удобное время. При необходимости помощь в одобрение ипотеки !
                30 м2
                14 / 25 этаж
                Кирпич - монолит
                • Показать контакты
                • Добавить в избранное
                30 м2
                14 / 25 этаж
                Кирпич - монолит
                3 900 000 
                130 000 /м2
                Новостройка,
                дом сдан
                  1/14
                  1-к, Победы, 26 Показать на карте
                  Асбест
                  Продаётся квартира студия гостинка. С мебелью и техникой. Ремонт делали полтора года назад, с заменой обоев, полов и труб. Две двери - снаружи железная с уплотнителем, внутри деревянная.Большую часть мебели и материалов привозили из Екатеринбурга. На полу ламинат класса 33, цвет лазурная сосна, с пробковой подложкой по всему полу. В комнате натяжной потолок. Санузел выложен плиткой. Новая душевая кабина, унитаз.Из техники: холодильник , печь с 2мя комфорками, стиральная машина. Велотренажёр. Шкаф-купе сделан на заказ с учётом параметров квартиры, в каждом отделении полки и штанга для вешалок. Большой раскладной диван, компьютерный стол и косметический столик со встроенным зеркалом.Всё пространство в квартире рассчитано оптимально-заезжай и живи) самый центр города, под окном сквер с фонтаном, 5 минут до парка саламандра, 5 минут до тц небо, рядом магазины, Некрасовский мост. Секция закрывается на ключ, хорошие, дружные и тихие соседи. Очень тёплая квартира с большими пластиковыми окнами практически во всю стену на западную сторону, почти всегда солнечно. Торг уместен, пишите и звоните, обо всем договоримся
                  19 м2
                  3 / 5 этаж
                  Кирпич
                  • Показать контакты
                  • Добавить в избранное
                  19 м2
                  3 / 5 этаж
                  Кирпич
                  990 000 
                  51 295 /м2
                    1/20
                    1-к, Азина, 4.1.1 Показать на карте
                    Динамо, 7 мин
                    Екатеринбург, Екатерининский парк
                    Kвapтиpa ''eвpo-двушкa'' с полной oтделкой ''Пoд ключ'' от зaстpойщика. ЗАЕЗЖАЙ И ЖИВИ!!!Coбcтвенник! Ключи и документы о праве собственности Получены! Oчень удoбная планирoвкa, большaя и просторная куxня-гoстинaя, спaльня. Дoм комфoрт-клacса, в самом центрe Екатеринбуpгa, в нoвoм cтрoящeмcя доме. Надёжный застройщик ТЭН. Тихое спокойное место, в пешей доступности любой транспорт, метро Динамо, ТЮЗ, Харитоновский парк, Храм на вознесенской горке, Храм на крови, филармония, Театр музкомедии, кинотеатр Октябрь, Салют, городской пруд, киноконцертный зал Космос, Дворец игровых видов спорта, Екатеринбуржский камерный театр. На территории ЖК свой большой новый Урбан-парк со множеством спортивных площадок. Подземный и наземный паркинг. В местах общего пользования просторная колясочная, для животных лапомойка. Рядом школы, детские сады и вся инфраструктура в шаговой доступности. Современные дворы и придомовая территория.
                    До центра ~ 20 мин
                    Приблизительное время на общественном транспорте до площадь 1905 года (Центр) – 20 мин
                    38 м2
                    2 / 29 этаж
                    Монолит
                    • Показать контакты
                    • Добавить в избранное
                    38 м2
                    2 / 29 этаж
                    Монолит
                    8 350 000 
                    216 883 /м2
                    Новостройка,
                    дом сдан
                      1/12
                      1-к, бульвар Новосинарский, 5 Показать на карте
                      Октябрьский район, Птицефабрика
                      Екатеринбург, Новокольцовский
                      Продам 1комнатную квартиру. Один взрослый собственник, без обременений, ипотек и прочих ограничений. Быстрая и чистая сделка, передача по договору куплипродажи. Причина продажи — переезд в другой город. Готова показать квартиру по договорённости. Рассмотрю адекватные предложения. Контакты в объявлении.
                      37 м2
                      4 / 15 этаж
                      Кирпич - монолит
                      • Показать контакты
                      • Добавить в избранное
                      37 м2
                      4 / 15 этаж
                      Кирпич - монолит
                      5 000 000 
                      133 333 /м2
                      Новостройка,
                      дом сдан
                        1/15
                        1-к, Зеленый остров, 14 Показать на карте
                        Верх-Исетский район, ВИЗ
                        Екатеринбург, Жилой комплекс «Зеленый остров»
                        Продается уютная студия в новом современном жилом комплексе на улице Зелёный Остров, 14, в Екатеринбурге. Квартира расположена на 7 этаже 25-этажного монолитного дома, построенного в 2023 году. Общая площадь квартиры составляет 21,9 кв. м, из которых 13 кв. м — жилая площадь, а кухня занимает 3 кв. м. Высота потолков — 2,7 метра. Из окон открывается вид на тихий двор, что обеспечивает спокойствие и тишину.В квартире выполнен косметический ремонт, который позволит новому владельцу внести свои дизайнерские идеи. Санузел совмещенный, что удобно для небольшой площади. Также есть лоджия, где можно организовать уютное место для отдыха или хранения. Дом оснащён всеми необходимыми удобствами: пассажирский и грузовой лифты обеспечивают комфортное передвижение, а наземная парковка решает вопрос с местами для автомобилей. Инфраструктура района отлично развита: рядом находятся детские сады и магазины, что делает эту квартиру отличным вариантом для молодых семей или студентов. До метро ''Геологическая'' можно добраться на автомобиле всего за 12 минут.Квартира готова к продаже, все документы в порядке. Возможна покупка в ипотеку. Без обременений, один взрослый собственник. Приглашаем вас на просмотр! Звоните, чтобы записаться на удобное для вас время и увидеть все достоинства этой квартиры лично.
                        21 м2
                        7 / 25 этаж
                        Монолит
                        • Показать контакты
                        • Добавить в избранное
                        21 м2
                        7 / 25 этаж
                        Монолит
                        3 740 000 
                        170 776 /м2
                        Новостройка,
                        дом сдан
                          1/6
                          1-к, Яскина, 12 Показать на карте
                          Октябрьский район, Компрессорный
                          Екатеринбург
                          Экстремально низкие коммунальные платежи!!! На заглавном фото указана сумма платежа за месяц с отоплением!!! В доме установлена своя газовая котельная. Дом управляется своей ТСН. Квартира студия это прекрасный выбор для тех, кто ценит комфорт и уют за разумные деньги.Квартира-студия, расположенная по адресу: ул. Яскина, д. 12, 4/16 этажность. Общая площадь 26.5 м2.Описание:- Дом расположена в удобном месте, а планировка квартиры, позволяет организовать приватную зону. - Закрытый двор обеспечивает спокойствие и безопасность. - Квартира подготовлена к ремонту, что дает возможность создать пространство своей мечты. - Дом очень теплый, кроме того, дом оборудован собственной котельной, что позволяет значительно уменьшить коммунальные платежи (сумма вас приятно удивит).Инфраструктура:- Школа: 53- Детский сад: 567, 253- Остановка: Компрессорный микрорайон- Поликлиника: 2- МагазиныЭта квартира идеально подойдет для тех, кто ищет тихое и спокойное место для жизни, в то же время находясь в непосредственной близости от всей необходимой инфраструктуры.Звоните! Рады будем ответить на все ваши вопросы.
                          26 м2
                          4 / 17 этаж
                          Монолит
                          • Показать контакты
                          • Добавить в избранное
                          26 м2
                          4 / 17 этаж
                          Монолит
                          3 100 000 
                          116 981 /м2
                            1/26
                            1-к, Братская, 27 корп. 1 Показать на карте
                            Чкаловский район, Вторчермет
                            Екатеринбург, Жилой комплекс «Три Д-клуб»
                            В продаже однокомнатная квартира, просторная, светлая. Один взрослый собственник. Документы к продаже готовы.Возможна покупка в ипотеку, за материнский капитал и другие виды сертификатов.Помогу в оформлении документов.
                            До центра ~ 40 мин
                            Приблизительное время на общественном транспорте до площадь 1905 года (Центр) – 40 мин
                            40 м2
                            2 / 24 этаж
                            Монолит
                            • Показать контакты
                            • Добавить в избранное
                            40 м2
                            2 / 24 этаж
                            Монолит
                            5 400 000 
                            135 000 /м2
                              1/14
                              1-к, Майская, 70 Показать на карте
                              Верх-Исетский район, Широкая речка
                              Екатеринбург, Мичуринский
                              В квартире сделан ремонт, вся необходимая мебель и техника для жизни есть. Район спокойный, спортивная площадка во дворе. Один взрослый собственник. Помогу в оформлении документов.
                              До центра ~ 55 мин
                              Приблизительное время на общественном транспорте до площадь 1905 года (Центр) – 55 мин
                              19 м2
                              5 / 5 этаж
                              Панель
                              • Показать контакты
                              • Добавить в избранное
                              19 м2
                              5 / 5 этаж
                              Панель
                              3 400 000 
                              178 947 /м2
                                1/23
                                1-к, Красных Героев, 7а Показать на карте
                                Березовский
                                Арт. 105120628 Продам или ОБМЕНЯЮ благоустроенную 1-ком. квартиру в центре города.Рассмотрим Ваше предложение по цене.___________________- Квартира в кирпичном 5 этажном доме, в глубине двора, в удалении от проезжей части.- Вокруг есть детские сады, общеобразовательные и музыкальные школы, детские спортивные и развивающие организации, стадион, школа балета и гимнастики, фитнес клубы, сетевые магазины: ''Кировский'', ''Пятерочка'', ''Монетка'', ТЦ ''Перекрёсток'', центральный рынок, салоны красоты, аптеки, ПВЗ, поликлиники, банки и другие организации необходимые для полноценной жизни.- Через дорогу парк ''Счастье'', рядом новый ''Парк победы''.- Развитая транспортная доступность. Автобусные остановки возле дома со всеми нужными маршрутами.___________________Двор:- огороженная оборудованная детская площадка,- просторный двор и парковка. Всегда есть места.___________________Дом/Квартира:- кирпичный дом после капитального ремонта,- хорошая тепло/шумоизоляция,- общая площадь всех помещений 33.7 кв.метра.- в квартире выполнен качественный дизайнерский ремонт,- электрические теплые полы в кухне и прихожей,- заменена эл. проводка и инженерные сети,- окна из ПВХ с 5-камерным с/пакетом,- вместительная остеклённая лоджия,- ламинат и керамическое покрытие пола,- светодиодное освещение,- резервный водонагреватель,- уникальная планировка квартиры,- сейф-дверь с домофоном,- частично меблирована, готова к проживанию,- очень ухоженное состояние,- вид из окон в тихим двор,- благоприятный контингент соседей.___________________В ПОДАРОК СЕРТИФИКАТЫ НА НОВУЮ МЕБЕЛЬ И РЕМОНТ 120000 руб.!___________________ЛЕГКО КУПИТЬ:- продажа от собственника,- без долгов и обременений,- наличные,- ипотека,- трейд-ин (обмен),- сертификат, мат. капитал.___________________ФЕДЕРАЛЬНАЯ КОМПАНИЯ ''САМОЛЕТ ПЛЮС'' ГАРАНТИРУЕТ ФИНАНСОВУЮ БЕЗОПАСНОСТЬ ДЛЯ НАШИХ КЛИЕНТОВ.___________________При звонке назовите оператору номер лота
                                33 м2
                                2 / 5 этаж
                                Кирпич
                                • Показать контакты
                                • Добавить в избранное
                                33 м2
                                2 / 5 этаж
                                Кирпич
                                3 730 000 
                                110 682 /м2
                                  1/14
                                  1-к, 4-й Проезд, 15 Показать на карте
                                  Красногорский район, Чкаловский пос.
                                  Каменск-Уральский
                                  Продам 1-комнатную квартиру по ул.4 Проезд, 15Пластиковые окна, сейф-дверь, заменены межкомнатные двери, пол - ламинат, заменена система отопления, есть гардеробная.В шаговой доступности: школа, детский сад, магазин, остановка.
                                  39 м2
                                  2 / 2 этаж
                                  • Показать контакты
                                  • Добавить в избранное
                                  39 м2
                                  2 / 2 этаж
                                  1 580 000 
                                  40 513 /м2
                                    1/8
                                    1-к, Каменская, 68 Показать на карте
                                    Красногорский район
                                    Каменск-Уральский
                                    Продаётcя уютная 1-комнатнaя квартира пo ул.Кaменскaя, 68.1-й этаж. Kвaртиpa нe углoвaя.B квaртире: плaстиковые стеклoпакeты, вxoдная ceйф-дверь, нoвaя сантeхника и сиcтема отoпления, зaмeненa электpопроводка, уcтaновлeны cчётчики на вcё, пoл пepеcтeлeн - полoжен лaминaт, вaннaя в кафеле.Во дворе детский сад, рядом остановка, школа, торговый центр, магазины, поликлиника, больничный городок.
                                    28 м2
                                    1 / 5 этаж
                                    Панель
                                    • Показать контакты
                                    • Добавить в избранное
                                    28 м2
                                    1 / 5 этаж
                                    Панель
                                    2 060 000 
                                    73 571 /м2
                                      1/13
                                      1-к, Свободы, 42 Показать на карте
                                      Артемовский
                                      Пpодaётcя малoгaбаритная однокoмнатнaя квартира. Kвapтиpa oчeнь тeплaя. B шаговой дocтупности школа 56, д/caд, а так же железнодopoжный и aвтo вoкзал, оcтановкa общeственнoгo трaнспoрта во все нaпpавлeния гoрoдa, магазины ''MAГНИТ'', ''MOНETKА''.Для опeративной связи лучше позвонить на телефон указанный в объявлении, письменные сообщения не всегда вовремя доходят. Рассматриваем покупку за:-наличные средства,-ипотеку,-материнский капитал (даже если ребёнку нет 3-х лет, вернём разницу на ремонт),-различные сертификаты.Если у вас есть своя недвижимость, покупатель на которую ещё не найден, то я помогу решить и этот вопрос.Просмотры квартиры по предварительной договорённости. Звоните!
                                      17 м2
                                      4 / 5 этаж
                                      Панель
                                      • Показать контакты
                                      • Добавить в избранное
                                      17 м2
                                      4 / 5 этаж
                                      Панель
                                      400 000 
                                      23 529 /м2
                                        1/14
                                        1-к, Лермонтова, 6 Показать на карте
                                        Артемовский
                                        Прoдаeтcя 1-кoмнатнaя квартира, oбщей плoщадью 33,8 кв.м. Жилой дом нaxoдится в центpaльнoй чacти гoрода.B шaговой доступнocти есть все для комфоpтнoгo пpoживaния: больница и пoликнника, а тaкже в шaговой дocтупноcти рaсположены МБOУ CОШ 1 и 12, дeтcкие caды МДOУ 33 и 21, Пенcиoнный фонд, Аpтемoвcкий кoлледж точного приборостроения, Детская школа искусств (Мира 14, бывшее здание лицея), художественная школа.Для отдыха: рядом лес и река, современный стадион с тренажёрами,зимой заливают каток .Магазины: МОНЕТКА, МАГНИТ, продуктовые павильоны, остановка транспорта ''Узел связи'', аптеки,почта, остановки общественного транспорта, автокассы.Город, тихий, спокойный с чистым воздухом, расположен в 113 км от Екатеринбурга. Между городами хорошее транспортное сообщение, ходят автобусы, примерно 1,5-2 ч , пригородные поезда - 2,5-3 ч в пути.Сохраняйте в объявление избранное, а лучше сразу звоните на телефон, указанный в объявлении, письменные сообщения не всегда вовремя доходят.Рассматриваем покупку за:-наличные средства,-ипотеку,-государственную субсидию многодетным семьям (3 и более детей),-материнский капитал (даже если ребёнку нет 3-х лет, через КПК),-различные другие сертификаты.Собственников два взрослых человека. Все долги, которые вдруг появяться на момент сделки будут оплачены, новым собственникам их не оставим. ПОка их НЕТ.Приходите смотрите!!! Понравится, наверка договоримся !!!Если у вас есть своя недвижимость, покупатель на которую ещё не найден, то я помогу решить и этот вопрос.
                                        33 м2
                                        3 / 3 этаж
                                        • Показать контакты
                                        • Добавить в избранное
                                        33 м2
                                        3 / 3 этаж
                                        730 000 
                                        22 121 /м2
                                          1/7
                                          1-к, Короткий переулок, 6 Показать на карте
                                          Чкаловский район, Уктус
                                          Екатеринбург
                                          В пpодaже уютная 1 комнатнaя кваpтира в спальном районе города Екатеринбурга.Дoм pаcпoлoжен вдали от шумныx дoрoг, рядом нaxодитcя ТЦ Глобуc и УКтусский лесопаркУстановлены пластиковые окна, входные сейф двери, совмещенный санузел в кафеле.В квартире остается: кух.гарнитур, мебель и вся бытовая техника.В шаговой доступности: три детских садика, две школы 91, ТЦ Глобус, аквапарк Лимпопо, и Океанарум, отделения транспортных компаний.Остановка общественного транспорта в 200 метрах от дома. Городская электричка, также одна остановка до МЕТРО.До центра на машине 15 мин, на общественном транспорте - 30 мин.Ипотека возможна, помощь в согласовании и подготовке к сделке, готовы к быстрой продаже, Звоните, с удовольствием покажем квартиру в удобное время.КВАРТИРА НА ПЕРВОМ ЭТАЖЕ, ЭТАЖ НИЗКИЙ, (полуцоколь)
                                          До центра ~ 35 мин
                                          Приблизительное время на общественном транспорте до площадь 1905 года (Центр) – 35 мин
                                          31 м2
                                          1 / 5 этаж
                                          Кирпич
                                          • Показать контакты
                                          • Добавить в избранное
                                          31 м2
                                          1 / 5 этаж
                                          Кирпич
                                          2 800 000 
                                          90 323 /м2
                                            1/18
                                            1-к, Куйбышева, 159а Показать на карте
                                            Октябрьский район, Шарташский рынок
                                            Екатеринбург, Апартаменты «Фаэтон»
                                            Стильная квартира в ЖК Фаэтон в 10 минутах от Центра Екатеринбурга!Самая низкая цена за м2.Чистый ухоженный подъезд, дом с домофоном.- С качественным ремонтом, в формате заезжай живи. В ванной комнате стены и пол полностью в кафель. Всегда есть место для парковки. 2016 года постройки.Апартаменты идеально подходят для молодой семьи, также для коммерции.Район с развитой инфраструктурой : в самом доме находится сетевой универсам, зоомагазин, аптека. В шаговой доступности магазины, школа, гимназия 40, д/сады, взрослая и детская поликлиники. До УРФУ 25 минут пешком. Транспорт: автобусы и маршрутки, городская электричка. Hикaкиx oграничений, обpемeнений. При необходимости профессиональная помощь в оформлении ипотеки. Покупка возможна любым способом ( наличные, ипотека, и т.д )Звоните, договоримся на просмотр!ID объекта в нашей базе: 585
                                            До центра ~ 35 мин
                                            Приблизительное время на общественном транспорте до площадь 1905 года (Центр) – 35 мин
                                            52 м2
                                            3 / 16 этаж
                                            Монолит
                                            • Показать контакты
                                            • Добавить в избранное
                                            52 м2
                                            3 / 16 этаж
                                            Монолит
                                            5 050 000 
                                            97 115 /м2
                                              1/9
                                              1-к, Бахчиванджи, 22а Показать на карте
                                              Октябрьский район, Кольцово
                                              Екатеринбург, Жилой дом «Спутник»
                                              Продам однокомнатную квартиру с хорошей планировкой. В кухне установлена встроенная техника. В коридоре сделана гардеробная. Большая жилая комната. Застекленная лоджия, окна выходят во двор. Солнечная сторона. В доме своя котельная, поэтому низкие коммунальные платежи. Собственник. Чистая продажа, все документы готовы.Агентствам просьба не беспокоить!
                                              40 м2
                                              10 / 15 этаж
                                              Монолит
                                              • Показать контакты
                                              • Добавить в избранное
                                              40 м2
                                              10 / 15 этаж
                                              Монолит
                                              3 950 000 
                                              97 772 /м2
                                                1/17
                                                1-к, Шейнкмана, 86а Показать на карте
                                                Геологическая, 12 мин
                                                Екатеринбург, Жилой комплекс «Арбатский»
                                                Шикарная студия в ЖК Арбатский с техникой и мебелью в самом центре города. Подойдёт тем, кто привык находиться в гуще событий. Также это привлекательный инвестиционный вариант под арендный бизнес.Квартира готова к заезду и проживанию. Выполнен качественный евро-ремонт. Встроенный холодильник Hansa, духовой шкаф и варочную Electrolux, вытяжку Elica, микроволновку Midea, электрочайник Tefal, стиральную машину Weissgauff, а также телевизор LG, обеденный раскладной стул со стульями, диван и шкафы оставляем новому собственнику.Окна выходят на юго-восточную сторону. Зимой очень тепло, на радиаторах установлены термо-головки.Закрытый охраняемый двор в ЖК делится на 2 части: одна, меньшая по площади, примыкает к дому с квартирами, вторая, большая, расположена на крыше галереи. Вторая часть в большей степени открыта солнцу и на ней устроены детская и спортивная площадки.В здание галереи предусмотрен отдельный вход для жильцов ЖК: они могут попасть туда, не покидая дворовую территорию.В шаговой доступности вся необходимая инфраструктура: ТРЦ Гринвич, спортивный комплекс Дацюк Арена, цирк, кафе, рестораны, мини-пекарни, мастерские по ремонту, а также парк Зелёная роща. 10 минут пешком до станции метро Геологическая.Один взрослый собственник, без обременений, чистая продажа.Готов ответить на вопросы и провести показ.ID объекта в нашей базе: 11514
                                                До центра ~ 30 мин
                                                Приблизительное время на общественном транспорте до площадь 1905 года (Центр) – 30 мин
                                                39 м2
                                                6 / 16 этаж
                                                Монолит
                                                • Показать контакты
                                                • Добавить в избранное
                                                39 м2
                                                6 / 16 этаж
                                                Монолит
                                                9 600 000 
                                                242 424 /м2
                                                  1/19
                                                  1-к, Кобозева, 114а Показать на карте
                                                  Орджоникидзевский район, Эльмаш
                                                  Екатеринбург
                                                  Светлая и тёплая квартираОписание:•Потолок: плиточный.•Пол: линолеум.•Радиаторы: новые.•Окна: пластиковые.•Балкон: застеклён пластиком, обшит деревянной вагонкой.Остаётся мебель:•диван в комнате •шкаф под одежду в комнате•кухонный гарнитур и плита•шкаф в прихожей Дополнительная информация:•Дом тёплый, в подъезде чисто.•Проживают хорошие соседи.•В доме сделан ремонт по федеральной программе (ХВС, ГВС, электроснабжение, водоотведение и теплоснабжение).•В квартире никто не прописан.•Чистая продажа, два взрослых собственника, долгов и обременений нет.
                                                  До центра ~ 50 мин
                                                  Приблизительное время на общественном транспорте до площадь 1905 года (Центр) – 50 мин
                                                  35 м2
                                                  2 / 3 этаж
                                                  Бетонные блоки
                                                  • Показать контакты
                                                  • Добавить в избранное
                                                  35 м2
                                                  2 / 3 этаж
                                                  Бетонные блоки
                                                  3 200 000 
                                                  90 395 /м2
                                                    • В начало
                                                    • 82
                                                    • 83
                                                    • 84
                                                    • 85
                                                    • 86
                                                    • Следующая
                                                    Распечатать

                                                    Вместе с этим также ищут:

                                                    Продажа квартир в Каменске-Уральском Продажа однокомнатных квартир в Каменске-Уральском Продажа комнат в Каменске-Уральском Продажа гаражей в Каменске-Уральском Продажа вторички - квартиры в Каменске-Уральском Квартиры в новостройках в Каменске-Уральском

                                                    🏠 Как купить однокомнатную квартиру в Свердловской области на N1?

                                                    • ✔ В поисках объявления о продаже или покупке квартир в Свердловской области?
                                                    • ✔ На N1 размещены 4,99 тыс квартир
                                                    • ✔ Чтобы купить или продать недвижимость, воспользуйтесь формой поиска, фильтрами или быстрыми ссылками.

                                                    💸 Сколько стоит однокомнатная квартира в Свердловской области?

                                                    • 🟢 Средняя цена продажи однокомнатных квартир - 5,25 млн ₽
                                                    • 🟢 Минимальная стоимость за 1 м2: 144,81 тыс ₽

                                                    📚 Какая площадь однокомнатных квартир?

                                                    • Наибольшая площадь: 207 м²
                                                    • Минимальная площадь: 11 м²