Дом, Мечтателей Показать на карте
Чкаловский район
Екатеринбург
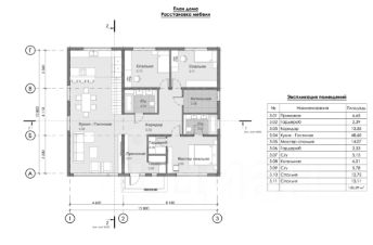
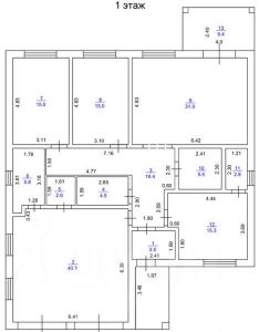
Продается готовый одноэтажный дом площадью 112 м² на участке 8,72 сотки в коттеджном поселке ''Совушки''. Участок окружен лесом, на нем растут высокие сосны, что создает ощущение уединения и покоя, а из террасы открывается вид на природу. Тупиковая улица, которая создает ощущение приватности, граничит с лесом.Дом возведен на монолитной железобетонной плите с утеплением. Стены из газобетонного блока (300 мм) дополнительно утеплены (150 мм) и имеют трехслойную штукатурку. Кровля — четырехскатная, из металлочерепицы. Высота потолков составляет 3,2 метра. В доме выполнена черновая отделка, предстоит чистовая отделка и монтаж инженерного оборудования.Все коммуникации централизованные: газ, водопровод, канализация, электричество (15 кВт) и оптический интернет. Сети проложены под землей.Этим летом будут отсыпать дорогу, делать тротуары.Поселок комфорт-класса предлагает городскую прописку, охраняемую территорию, собственную инфраструктуру, а рядом строятся детский сад и школа. Магазины и пункты выдачи заказов находятся в шаговой доступности. При этом локация сохраняет преимущество тихой лесной жизни всего в 10 минутах езды от ЕКАД. Код пользователя: 201722Номер в базе: 12390465
112 м2
1 этаж
- Показать контакты
- Добавить в избранное
112 м2
1 этаж
17 100 000
152 679 /м2
