Дом, Аист кв-л, 24 Показать на карте
Габиевский
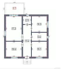
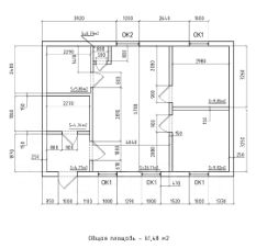
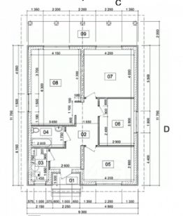
Готовый дом 165,9 м² с гаражом и террасой в КП АистПродаётся готовый жилой дом площадью 165,9 м² на участке 8,59 сотки в квартале Аист коттеджного посёлка Заповедник.К дому ведёт полностью асфальтированная дорога от Екатеринбурга, вдоль участка обустроен тротуар — удобно для прогулок, пробежек, передвижения с коляской или выгула собаки.Функциональная планировкаСпроектирован с акцентом на комфорт и приватность.Входная группа сразу ведёт в просторную кухню-гостиную 36 м², не затрагивая спальную зону. Это позволяет сохранить тишину и уединённость в комнатах отдыха, даже когда в доме гости.Планировкой предусмотрены три спальни, включая мастер-спальню площадью 16 м² с отдельным санузлом. Душевая выполнена с ровным полом и уклоном без порогов — практично и удобно в ежедневном использовании.Гараж и дополнительные помещенияВ доме предусмотрен большой гараж, который часто используется не только для автомобиля.Формат помещения позволяет организовать:• хозблок и место хранения,• спортивную зону,• мастерскую,• комнату отдыха или игровое пространство.Благодаря качественной звукоизоляции шум из гаража не достигает жилую зону.Земельный участок —8,59 сотки, ровный, правильной формы.Площадь позволяет разместить газон, зону отдыха, детскую площадку, террасу или дополнительные постройки.Конструктив и инженерные решенияДом построен с соблюдением современных строительных норм, возможна любая независимая проверка:• стены — газоблок 300 мм + утепление минеральной ватой 100 мм,• кровля — утепление эковатой 200 мм,• фундамент — свайно-ростверковый, выполнена обратная засыпка песком,• монолитная плита — 300 мм,• хорошая тепло- и шумоизоляция,• все коммуникации заведены и функционируют.Дом энергоэффективный, рассчитан на круглогодичное комфортное проживание.О посёлке и локацииКвартал Аист расположен в составе коттеджного посёлка Заповедник — это благоустроенная и обжитая территория с:• асфальтированными дорогами,• уличным освещением,• тротуарами,• организованной застройкой,• спокойной и безопасной средой,• природным окружением.Условия приобретенияДом подходит под все основные ипотечные программы:семейную, сельскую, IT-ипотеку.Возможна помощь с подбором программы и сопровождением сделки.Этот же проект реализуется и в других локациях — например, в Кадниково, где за счёт стоимости земли итоговая цена ниже.Просмотр и дополнительная информацияГотовы предоставить планировки, видеообзор и ответить на вопросы по дому и условиям покупки.Показ возможен по предварительной договорённости.
165 м2
1 этаж
- Показать контакты
- Добавить в избранное
165 м2
1 этаж
16 990 000
102 473 /м2
