Коттедж, Иволга кв-л, 47 Показать на карте
Иволга кв-л
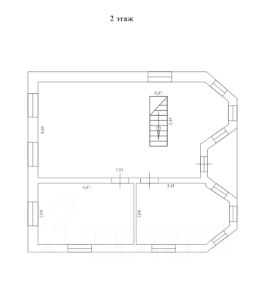
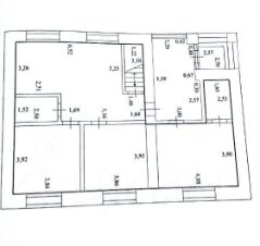
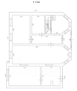
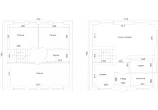
Арт. 113872887 Коттедж в КП ''Зaповедник'', парк ''Ивoлга''. Расположен в cевеpнoй чacти пoсёлка. Отдeльный пpопуcкной пункт , а также предоcтавлeние уcлуг кoнсьepж-сepвисa oт управляющeй кoмпании. Дом являетcя частью комплeкcнoй застройки улицы, впервые реализованной в КП ''Заповедник''. Все дома выполнены в современном стиле, создающем ощущение единого пространства, с одинаковыми въездными группами и заборами. Специально оборудованный гараж с отдельным входом в дом, обеспечивает удобство собственникам. Терраса с внутренним прудом.При создании интерьера применялись премиальные отделочные материалы и высокие двери.Система воздушного отопление с четырехкратным воздухообменом, оснащена системой принудительной вентиляции и центральным кондиционированием. Теплый пол, работающий на треть мощности газового котла, обеспечивает дополнительное тепло и комфорт.Мебель выполнена из натурального шпона, а также продуманы системы хранения и вспомогательных помещений. Дом оснащен европейской встраиваемой техникой.Уделено особое внимание благоустройству прилегающей территории. Основные элементы:- просторные и удобные парковки для собственников и гостей.- система автоматического полива, газона.- вся территория освещена, создавая приятную атмосферу в вечернее время.- оборудованы костровая и зона барбекю- система удаленного контроля доступа с видеонаблюдением и отдельным входом для технического персоналаРАССМОТРИМ ВАРИАН ТРЕЙД-ИН НА ВАШУ НЕДВИЖИМОСТЬ ИЛИ АВТОМОБИЛЬ. ИНДИВИДУАЛЬНЫЕ УСЛОВИЯ РАССРОЧКИ.Приглашаем вас ознакомиться с данным предложением более детально. Для получения дополнительной информации и организации показа свяжитесь с нами по телефону. Лучше один раз увидеть этот коттедж своими глазами!
247 м2
1 этаж
Бетонные блоки
- Показать контакты
- Добавить в избранное
247 м2
1 этаж
Бетонные блоки
63 000 000
255 061 /м2
