Коттедж, Кашино Показать на карте
Кашино
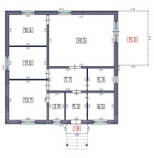
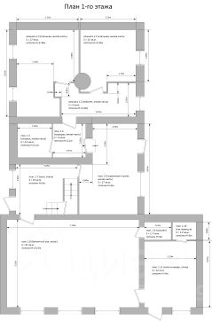
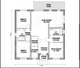
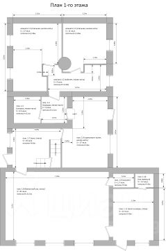
В продаже загородный дом 114 м² от застройщика! Чистовая отделка. Коттеджный поселок Николин ключ (Сысерть, Кашино), ул. Гранатовая, 18. 40 минут от центра Екатеринбурга.Доступна семейная ипотека под 6%.Планировка объекта:- просторная кухня - гостиная с выходом на участок- три изолированные спальни- два санузла- котельная- терраса.Фундамент — свайно-ленточный с обратной засыпкой,Стены — газоблок 300 мм с утеплителем 100 мм,Перегородки — газоблок 300 мм, в с/у газоблок ПГПВ, межкомнатные из плит гипсовых пазогребневых.Окна — ПВХ 5ти камерный профиль, снаружи ламинация, стеклопакет 2х камерный.Сейф-дверь утепленная.Коммуникации — электроснабжение, водоснабжение, водоотведение, газовая котельная с резервным электрокотлом.Участок с возможностью постройки бани, беседки, навеса для авто. Расположен в тихой части посёлка с отличным видом, рядом с лесным массивом.Самые низкие коммунальные платежи в регионе!Рядом вся необходимая инфраструктура: на въезде в посёлок расположены крупные продуктовый и строительный магазины. Также в непосредственной близости школа и детские сады. Открыт частный детсад в самом посёлке.Просмотр в любой удобный день по предварительной договоренности. Заявку можно оставить по телефону.Предложим индивидуальные условия рассрочки, подберём лучшие ипотечные условия. Доступен trade-in в Екатеринбурге. Рассмотрим индивидуальные варианты кредитования.Звоните, ответим на любые вопросы!
114 м2
1 этаж
- Показать контакты
- Добавить в избранное
114 м2
1 этаж
12 600 000
110 526 /м2
