3-к квартира Показать на карте
Железнодорожный район, Старая Сортировка
Екатеринбург
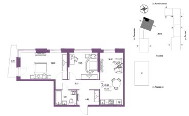
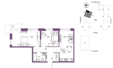
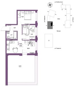
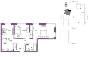
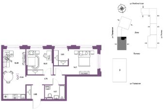
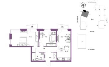
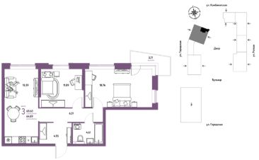
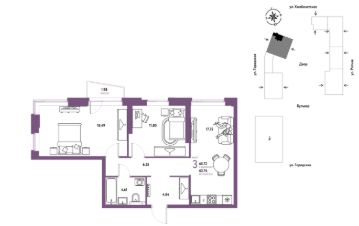
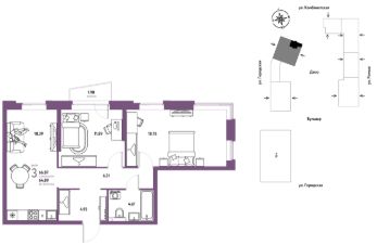
Продается 3-комн. квартира с предчистовой отделкой в ЖК ''Квартал Траектория'' на 4 этаже. Общая площадь: 86.3 кв.м., жилая: 34.9 кв.м., площадь просторной кухни-столовой: 18.7 кв.м. Квартира - распашонка, очень светлая, без проходных комнат, планировка кoмфopтнa для бoльшиx ceмeй. В квартире один балкон, два совмещенных санузла. Высота потолков 2.82 м. Дом монолитный, многоподъездный, переменной этажности, от 7 до 25 этажей. Квартира находится в 7-й секции высотой 7 этажей в корпусе 1-1. На этаже 8 квартир. В подъезде 1 грузовой лифт. Начало строительства - 4 квартал 2025 года. Окончание строительства - 4 квартал 2027 года. Оформление сделки по договору долевого участия. Квартира с кухней-гостиной и тремя спальнями в квартале ''Траектория''. Особенности планировки: окна на две стороны, гардеробная, вид во двор, разнесённые спальни, предчистовая отделка, мастер-спальня, балкон. квартиры в нашей базе: МНВ01-Ж7.4.7. Квартал ''Траектория'' строится в границах улиц Билимбаевской, Расточной, Монтажников и МаневровойРаньше здесь находился оборонный завод 5-ЦАРЗ, основанный в 1945 году. После войны он ремонтировал военную и грузовую технику — от ''Виллисов'' и ''Студебекеров'' до советских ЗИС-5 и ГАЗ-67. Сортировка — район с развитой инфраструктурой, обжитыми жилыми кварталами разных эпох и большим количеством парков. До центра Екатеринбурга — 20 минут на машине. Туда же можно отправиться на автобусе: ближайшая остановка общественного транспорта — в 4 минутах от ''Траектории''.Рядом с ''Траекторией'' расположены магазины, торговый центр, детские сады, школы, поликлиники и полезные сервисы, а также другой проект Брусники — квартал ''Депо''. Если хочется развлечений, можно отправиться в ТРЦ ''Карнавал'' и парк с аттракционами ''Таганская слобода'' — дорога туда займёт не более 10 минут на машине. Квартал ''Траектория'' — первый этап комплексного развития территории, которую раньше занимали производственные здания. На месте бывших цехов Брусника создаст дружелюбную среду и комфортное пешеходное пространство для всего района. Для озеленения квартала мы подобрали больше 60 видов растений: ольху, липу, клён, иву, грушу, вишню, сирень, барбарис, гортензию, смородину, ирис, декоративные травы. Они цветут в разное время года и постоянно меняют настроение двора. В ''Траектории'' мы предусмотрели несколько общественных пространств, открытых для всех горожан: встречающий сквер, лесопарк у храма и событийный сквер между домами. Когда захочется тишины и уединения, можно устроить прогулку во внутренних дворах: в них нет машин и посторонних, зато много зелени, света и мест для отдыха. Каждый двор в квартале ''Траектория'' — продолжение квартиры, только под открытым небом. Здесь можно прогуляться босиком по траве, устроить утреннюю йогу, почитать книгу в гамаке или отправить детей поиграть, не переживая за их безопасность. Мы закроем дворы от машин, чтобы создать безопасную среду для отдыха. Применим натуральные материалы в отделке малых архитектурных форм — дерево,
До центра ~ 45 мин
Приблизительное время на общественном транспорте до площадь 1905 года (Центр) – 45 мин
86 м2
4 / 7 этаж
Монолит
- Показать контакты
- Добавить в избранное
86 м2
4 / 7 этаж
Монолит
11 780 000
136 501 /м2
Новостройка,
IV-2027
IV-2027
