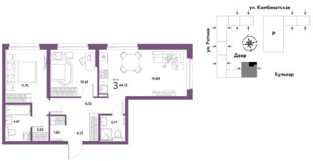
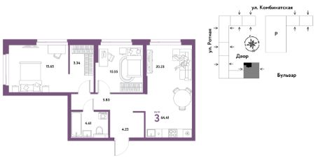
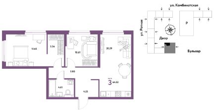
3-к, Комбинатская, 18 стр. Показать на карте
Ленинский район, Совхозный поселок
Совхозный
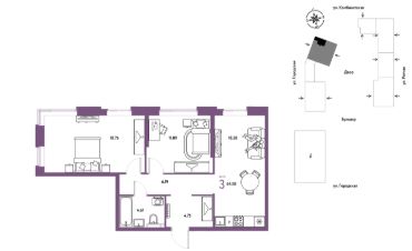
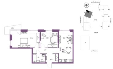
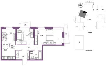
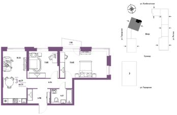
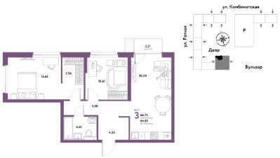
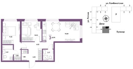
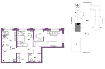
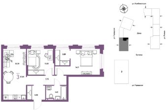
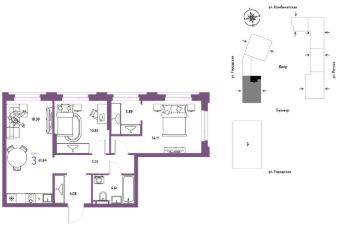
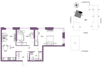
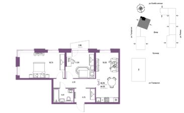
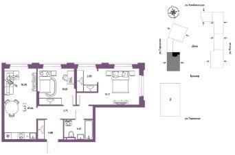
Новая квартира в ЖК ''Уральский сад'' напрямую от федерального застройщика ''Страна Девелопмент''.3комнатная квартира площадью 81,45кв. м. на 6 этаже жилого комплекса ''Уральский сад''.Жилой комплекс ''Уральский сад'' — это новый проект ревитализации территории в Екатеринбурге. Основная идея проекта создать комьюнити людей, которые наполняют свою жизнь необходимыми ресурсами и энергией, стремятся созидать, вдохновлять и развивать. 17 жилых домов переменной этажности — это ''место силы'' для жителей, соединенное с комфортом и умными технологиями.ПреимуществаТерритория проекта будет условно разделена на 3 зоны: внешнее окружение, общественный бульвар и закрытые дворы. Чтобы создать дополнительный зелёный буффер на общественных пространствах мы высадим полноразмерные деревья.Особое внимание мы уделили входным зонам с парадными — каждая из них имеет свой уникальный дизайн, гармонирующий с внутридворовым пространством.Разноуровневые террасы, французские балконы и панорамное угловое остекление — особенность проекта. Архитектурная подсветка акцентно выделяет квартал в локации.ОтделкаКвартиры сдаются с предчистовой отделкой: произведена разводка электричества и отопления, выполнена стяжка пола, стены выровнены ''под маяк'', установлены розетки, выключатели и радиаторы. Дизайнерская отделкаПри покупке квартиры в ЖК ''Уральски сад'' можно включить стоимость ремонта в ипотеку. Пять вариантов на выбор: хлопковая нить, серый шторм, белый камень, шалфей, голубой вереск. Способы покупкиСотрудники ''Страна Девелопмент'' будут сопровождать вас на каждом этапе сделки, помогут получить одобрение по ипотеке или снизить ежемесячный платеж.- ипотека- рассрочка- с использованием материнского капитала -100% оплата наличнымит от застройщика: 5 вариантов на выбор.Закрытый двор с площадками и зонами отдыха: мост-акведук, тренажёры, лабиринты, гамаки и шезлонги.ОТДЕЛКАБазовая отделка или готовый ремонт от застройщика.В базовой отделке все черновые работы выполнены, подведены коммуникации, стены оштукатурены под маяк.В ремонт от застройщика входит 5 вариантов отделки, уже включено всё необходимое: от сантехники до кондиционера.СПОСОБЫ ПОКУПКИСотрудники ''Страны Девелопмент'' будут сопровождать вас на каждом этапе сделки, помогут получить одобрение по ипотеке или снизить ежемесячный платеж.ипотекаматеринский капитал100% оплата наличнымирассрочкаобмен — это выкуп вашей старой квартиры и зачисление полученных денежных средств в счет стоимости новой квартиры или в качестве первоначального взноса по ипотеке.
81 м2
6 / 21 этаж
Кирпич - монолит
- Показать контакты
- Добавить в избранное
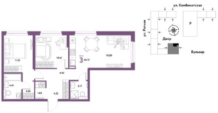
81 м2
6 / 21 этаж
Кирпич - монолит
12 611 111
154 833 /м2
Новостройка,
IV-2028
IV-2028
